Nouvelle-Aquitaine, Dordogne (24)
Saint-Crépin-et-Carlucet, église Saint-Crépin
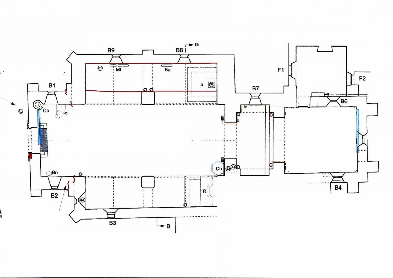
Édifice


L’église se développe selon un plan composé d’une nef rectangulaire prolongée d’une première travée constituant un avant choeur, puis d’un chevet plat ouvrant au Nord sur une sacristie. La nef est doublée de collatéraux tandis que la première travée de choeur est surmontée d’un imposant clocher tour. La couverture de la nef et des bas-côtés est en lauses, le clocher et le choeur en everite et la sacristie en tuile plate.
Les travées de chœur datent de l’époque médiévale, le chœur et la nef sont du XIIIème siècle. Quant à elle, la chapelle date du XVème siècle.


