Centre-Val de Loire, Loiret (45)
Batilly-en-Puisaye, église Saint-Louis
Édifice


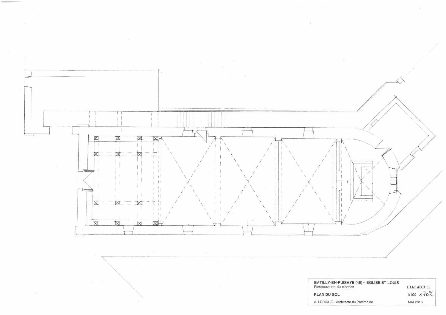
Cet édifice est composé d’une nef principale. Au Nord-Est, une sacristie s’appuie sur le mur du chevet. On peut voir sur la première travée de la nef un clocher élancé.
L’église fut achevée fin du XIIe s. Elle fit l’objet d’importants travaux de restauration entre 1510 et 1525. Passée à travers les deux premières guerres de religion, elle sera incendiée et détruite vers 1569 – 1570 par une bande de brigands huguenots. Des travaux de réparation du clocher auraient eu lieu vers 1751.


