Hauts-de-France, Nord (59)
Templeuve-en-Pévèle, Eglise Saint-Martin
Édifice


NB : La notice publiée ci-dessous est une notice provisoire, la notice scientifique étant en cours de rédaction.
Description
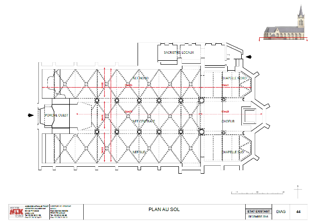
L’église Saint-Martin de Templeuve-en-Pévèle a connu plusieurs campagnes de travaux du XIIIe siècle au XXe siècle. De plan basilical, l’église est composée d’une nef à trois vaisseaux et sept travées et d’un choeur terminé par une abside polygonale, flanqué de deux chapelles latérales.
Les façades extérieures, homogénéisées par une campagne de travaux de 1883 à 1884, sont édifiées en pierre de Lezennes et en pierres calcaires de la vallée de l’Oise sur un soubassement en grès.
Le clocher-porche est édifié dans un style éclectique : la chambre des cloches est percée de baies géminées à piédroits munis de colonnettes. Le niveau de la flèche est couronné d’une balustrade ornée de quadrilobe. L’ensemble est couronné par une flèche octogonale.
Historique
Un examen archéologique prouve la présence d’une partie encore romane au niveau des parements du choeur et de la nef. Il semblerait que cette première église aurait été construite au début du XIIIe s. et aurait été composée d’une nef éclairée par des baies hautes flanquée de bas-côtés avec une toiture en appentis.
En 1355, une chapellenie en l’honneur de saint Jean-Baptiste est fondée. Presque un siècle plus tard, en 1435, La Chapelle latérale Sud qui lui est dédiée est agrandie d’une travée supplémentaire et d’une abside à trois pans. Cet agrandissement modifie le plan de l’édifice.
Vers 1440, une seconde chapelle latérale régularise le plan de l’église. En 1514, le choeur est totalement reconstruit et devient une hallekerke (église-halle) à trois vaisseaux.
AU XVIIIe s., les bas-côtés sont allongés vers l’Est et la façade principale est reconstruite. C’est également le moment où un faux-transept est construit dans l’axe de la dernière travée de la nef.
Au XIXe s., l’église est agrandie, modernisée et régularisée par l’architecte roubaisien Paul Destombes. Les bas-côtés sont élargis et le clocher en pierre est venu surplomber la composition.
D’après l’étude de l’Agence Nathalie T’Kint, architecte du patrimoine.
Le projet en images
Actualités liées

Immobilier
Comité d’action de Janvier 2022
L’église San-Vincens de Mantet, dans les Pyrénées-Orientales Le premier comité technique d’aide aux édifices de la Sauvegarde de l’année 2022 s’est tenu le 18 […]

Communication
Grand Prix Pèlerin du Patrimoine 2022 : déposez votre candidature !
Depuis 2013, La Sauvegarde est partenaire du prestigieux concours, lancé en 1990 par le Pèlerin Magazine du groupe Bayard-Presse pour distinguer des projets […]
Mobilier
Allianz France et Le Plus Grand Musée de France – Vote édition 2021-2022
LE PROJET Du 16 septembre 2021 au 31 janvier 2022, Allianz France et la Fondation pour la Sauvegarde de l’Art Français vous ont […]







