Normandie, Eure (27)
Aizier, Eglise Saint-Pierre
Édifice


NB : La notice publiée ci-dessous est une notice provisoire, la notice scientifique étant en cours de rédaction.
Description
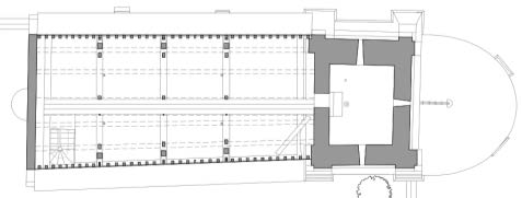
L’église Saint-Pierre est composée d’une nef unique et terminée par une abside de plan semi-circulaire, épaulée par deux contreforts s’élevant sur toute la hauteur du mur. Le clocher, entre l’abside romane et la nef, domine l’ensemble.
La façade septentrionale est la plus ancienne de l’édifice. Les deux premières travées à l’Ouest, construites en moellons enduits, auraient été construites en premier. La façade méridionale est composée de quatre piles supportant les arcades qui séparaient la nef du collatéral Sud jusqu’au XIXe siècle.
Historique
Une première église romane a peut-être été érigée dès le XIe s., après que Richard II a donné la commune d’Aizier à l’abbaye de Fécamp. De ce premier édifice subsiste le clocher et l’abside.
Vers 1600, la nef est reconstruite après un incendie ayant dévasté l’édifice. Il est possible de voir des pierres ayant été au contact du feu à plusieurs endroits de l’édifice : la surface est devenue rosâtre quand le coeur est resté jaune.
Cette nouvelle nef est construite avec un collatéral au Sud et un nouveau voûtement de l’avant-choeur sur croisée d’ogive. Avant 1846, le collatéral Sud est détruit et les arcades qui le séparaient de la nef sont touchées. La nef est raccourcie et la façade occidentale est reconstruite.
En 1913, le clocher et l’abside sont classés au titre des Monuments Historiques. Pendant la Seconde Guerre mondiale, des éclats d’obus endommagent la toiture du clocher, qui est restaurée entre 1951 et 1955.
Depuis 1961, la nef est inscrite à l’Inventaire Supplémentaire des Monuments Historiques.
D’après l’étude de Mael Le Quelen, architecte du patrimoine
Le projet en images
Actualités liées
Mobilier
Allianz France et Le Plus Grand Musée de France – Vote édition 2021-2022
LE PROJET Du 16 septembre 2021 au 31 janvier 2022, Allianz France et la Fondation pour la Sauvegarde de l’Art Français vous ont […]

Immobilier
Comité d’action de Janvier 2022
L’église San-Vincens de Mantet, dans les Pyrénées-Orientales Le premier comité technique d’aide aux édifices de la Sauvegarde de l’année 2022 s’est tenu le 18 […]

Mobilier
« Le Plus Grand Musée de France » : la campagne étudiante 2021-2022
Le 24 novembre dernier, la Sauvegarde accueillait la promotion 2021-2022 de la campagne étudiante du Plus Grand Musée de France pour le lancement […]











