Grand Est, Aube (10)
Etourvy, Église Saint-Georges
Édifice


L’église paroissiale Saint-Georges d’Étourvy dépendait avant la Révolution du diocèse de Langres. C’est un édifice composite d’origine romane, remanié au XVIe s., comme le furent la plupart des églises champenoises contemporaines lors de la reprise économique au lendemain de la guerre de Cent Ans ; il fut remanié et restauré au XVIIe siècle.
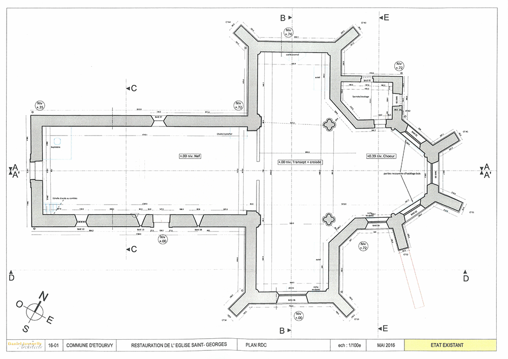
L’édifice se compose d’une nef romane couverte en charpente, d’un transept saillant élevé dans les années 1540 et d’un chœur à cinq pans, de style Renaissance.
Au XVIIe s., les murs de la nef ont été refaits et deux grandes fenêtres ouvertes dans le bas-côté au sud ; les autres fenêtres de la nef ont été refaites au siècle suivant. De petites baies en plein cintre, qui semblent appartenir à la construction romane, subsistent sous la couverture. Le sommet des murs de la nef est orné d’un rang de modillons cubiques, décor que l’on rencontre fréquemment à l’époque médiévale dans les églises de la Champagne méridionale. Au XVIIe s., le grand pignon ouest fut percé d’un oculus et son portail rectangulaire fut très remanié. À la même époque, un clocher en charpente, surmonté d’une flèche, est venu se greffer sur le versant sud de la nef.
Le transept et le chœur sont voûtés d’ogives qui retombent sur des piles ondulées, création du XVIe s., dont la forme étirée indique, selon Marguerite Beau, une réfection qui pourrait être du XVIIe siècle. Le chœur à cinq pans et le transept sont largement éclairés par de hautes baies en plein cintre à remplages Renaissance « en éventail », séparés par un meneau. Quelques baies ont conservé des fragments de vitrerie géométrique du XIXe siècle.
Au XIXe s., l’église a fait l’objet de deux grandes campagnes de travaux dirigées par l’architecte Nicas, de Bar-sur-Seine. En 1833, il restaure les couvertures et les maçonneries de l’édifice puis, en 1837, dégage le pied des murs des terres accumulées et le reprend partiellement en sous-œuvre. Les charpentes sont refaites, ainsi que les couvertures de la nef et du chœur. Il reconstruit la flèche du clocher, renforce les murs intérieurs, restaure les parements extérieurs dégradés ainsi que les remplages Renaissance des vitraux dont le décor de lambrequins et de pendentifs est ragréé au ciment de Molêmes.
Le clocher est à nouveau restauré en 1875 et, en 1898, sa flèche est couverte en zinc. Les deux cloches actuelles ont été refondues en 1818 par Eloïs Roze.
Aujourd’hui, les maçonneries de l’édifice sont très dégradées ; les voûtes du transept et celles du chœur présentent d’importants désordres, en particulier dans les intrados de ces dernières, dont certaines fissures se prolongent jusqu’aux arcs diagonaux, disloquant les claveaux. On constate aussi des décollements au niveau des formerets. Par mesure de sécurité, le chœur a été étayé et fermé au public. Des systèmes de ventilation pour assainir les maçonneries ont été mis en place. Dans un second temps, il est prévu de restaurer les contreforts du chœur qui ne jouent plus leur rôle de maintien.
Pour l’étaiement du chœur et la création de ventilations, mesures conservatoires, la Sauvegarde de l’Art français a accordé 4 000 € en 2010.
Jannie Mayer
Bibliographie :
Arch. dép. Aube, 2 O 1464, dossier des restaurations 1828-1838.
- Roserot, Dictionnaire historique de la Champagne méridionale, t. III, Troyes, 1948, p. 566.
- Beau, Essai sur l’architecture religieuse de la Champagne méridionale auboise hors Troyes, Troyes, 1991.
Le projet en images
Actualités liées

Immobilier
L’été de la Sauvegarde : 17 églises aidées en juin
Pour ce quatrième comité de l’année 2018, la Sauvegarde de l’Art Français a décidé d’aider à la restauration de 17 églises partout en […]

Immobilier
Le printemps de la Sauvegarde : 18 églises aidées en avril
Pour ce troisième comité de l’année 2018, la Sauvegarde de l’Art Français a décidé d’aider à la restauration de 18 églises partout en France. […]

Immobilier
Le comité de janvier 2018 apporte un nouveau souffle à 23 églises
L’année 2018 commence sous les meilleurs auspices pour les 23 églises sélectionnées par le comité de la Sauvegarde, le 30 janvier. Auvergne-Rhône-Alpes Voreppe […]









