Occitanie, Gers (32)
Flamarens, Eglise Saint-Saturnin
Édifice


Description
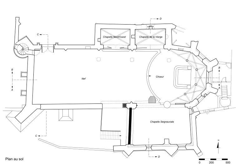
L’église Saint-Saturnin est un édifice imposant qui se compose d’une nef autrefois voûtée de 4 travées d’ogives retombant sur des piliers intermédiaires délimitant les collatéraux se prolongeant en déambulatoire autour du chœur à chevet polygonal.
L’ensemble est flanqué de 4 chapelles latérales, également voûtées d’ogives (à l’origine):
– au Sud-Est, la chapelle seigneuriale, qui ouvre par le biais de grandes arcades, dont une obturée par une paroi en terre, sur la nef et le chœur.
– au Sud-Ouest, subsiste les soubassements d’une deuxième chapelle Sud,
– au Nord, la nef ouvre sur deux chapelles accolées, dont la chapelle dédiée à la Vierge à l’Est. La chapelle de la Vierge est actuellement ouverte sur l’extérieur ; elle présente un décor très coloré XIXe.
La chapelle est couverte d’une voûte à simple croisée d’ogives. Les nervures sont reliées par une clé de voûte sculptée et reposent sur des culs de lampe également sculptés.
A noter la présence qu’une cinquième chapelle accolée au chœur aujourd’hui disparu.
Le portail Nord était probablement précédé d’un auvent dont la trace est encore visible sur les élévations extérieures et dont l’emprise semble figurer sur le cadastre napoléonien.
Le pignon Ouest est surmonté d’un clocher-mur percé de quatre baies campanaires organisées en deux registres, les baies du registre inférieur ayant été murées.
Une tour d’escalier en vis, logée à l’angle Nord-Ouest de l’église, desservait les combles.
historique
L’église de Flamarens aurait été édifiée au XIVe siècle, intégrant des constructions antérieures. Elle succéderait en effet à une première chapelle castrale du XIe siècle, construite à l’emplacement du cimetière actuel. Elle dépendait à l’époque de l’abbaye de Moissac qui l’aurait conservée en sa possession jusqu’à la fin du XVIIIe siècle.
Démarrée à partir de 1520, sur commande du Seigneur Arnaud de Grossoles, , seigneur de Flamarens, et neveu d’Hérard de Grossoles, évêque de Condom, la construction de l’église Saint-Saturnin se termine aux alentours de 1545.
Elle a été élevée sur une colline, à proximité immédiate du château, et intégrée au système défensif de celui-ci. L’ensemble du site, détenant une précieuse position géographique en surplomb du village, constituait l’ultime refuge des habitants.
Toutefois, le mur d’enceinte sur lequel l’église a été élevée, avait été établi originellement sur un remblai mal stabilisé. Ainsi assiste-t-on, au cours des siècles qui suivirent, à l’apparition de sérieux problèmes concernant les maçonneries, entraînant régulièrement d’importants
dommages. En conséquence, cet édifice religieux a plusieurs fois été restauré, consolidé et remanié dans le but d’en assurer sa conservation.
En 1956, l’église fut fermée, de graves fissures étant apparues dans la maçonnerie.
Aucun travaux n’ayant pu être engagés faute de moyens, les désordres s’aggravèrent et, en 1971, la toiture s’est totalement effondrée.
En 1976, fut fondée l’association de sauvegarde de l’église. L’intérieur de l’église fut alors débarrassé des décombres.
Malgré plusieurs campagnes de restauration et de consolidation entreprises dans les années 1980 et 1990, le mur sud de la nef s’effondre en 2004. A la suite d’une étude préalable réalisée par l’architecte en chef des monuments historiques, Stéphane Thouin, et la réalisation d’un diagnostic géotechnique, la commune de Flamarens a entrepris un ambitieux et important chantier de confortation et de restauration d’abord du clocher, puis de la nef et de la chapelle sud. En 2022, sous l’encadrement de Gaëlle Duchêne, architecte du patrimoine, le village de 139 habitants entreprend des travaux nécessaires de confortation du chœur et de stabilisation du sol de la nef.









