Normandie, Seine-Maritime (76)
Gaillefontaine, Église Saint-Jean-Baptiste des Noyers
Édifice


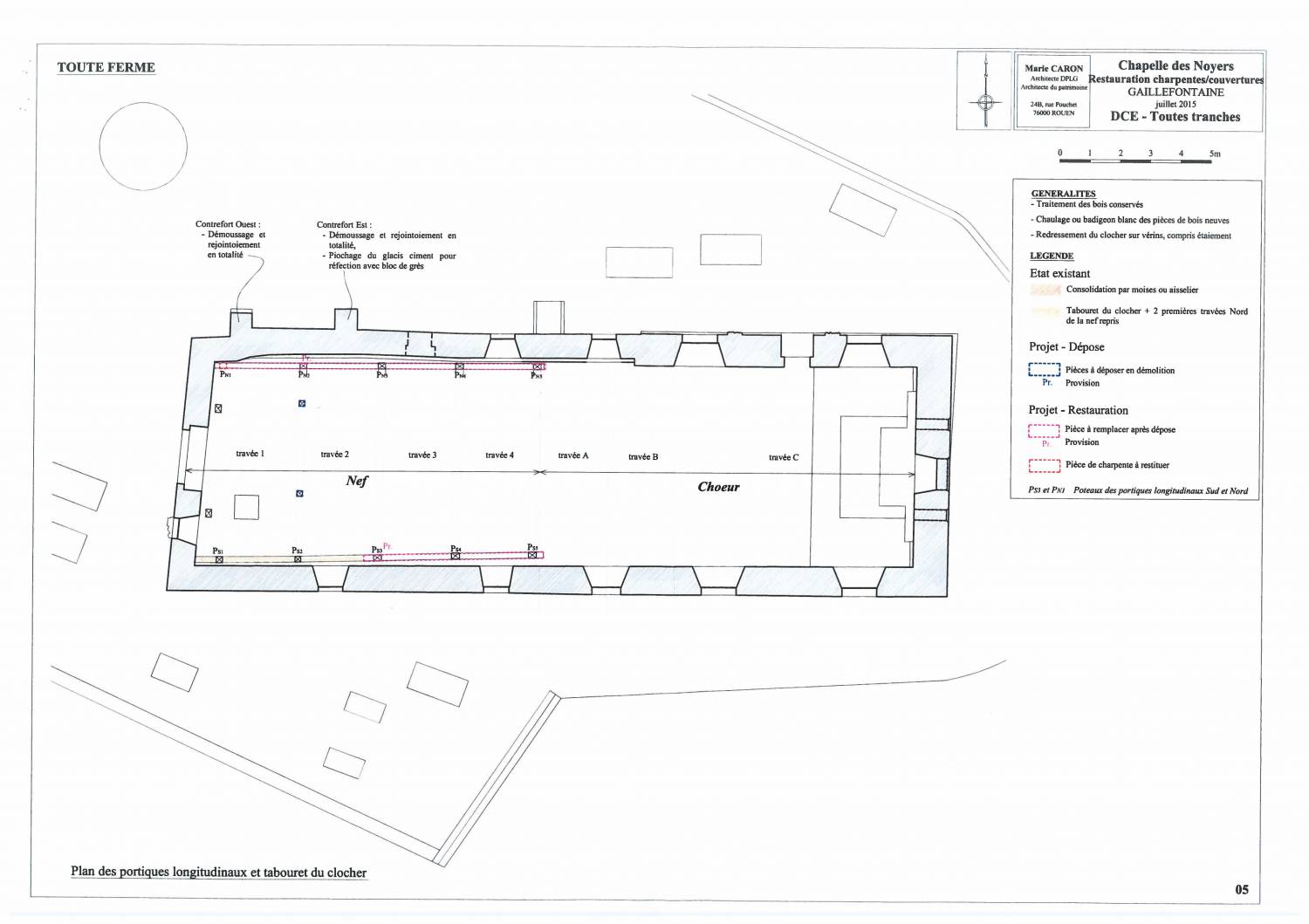
L’ancienne église paroissiale est composée d’une nef unique couverte d’une voûte lambrissée (aujourd’hui déposée) et d’un choeur à chevet plat, construit dans le prolongement de la nef. Il est ouvert de trois baies accolées.
Le fief de Noers était possédé par Guillaume de Haucourt en 1220.
La chapelle des Noyers est mentionnée par l’archevêque Eudes Rigaud en 1265.
Les fonts baptismaux indiquent que l’église pourrait remonter au XIe s ou XII e siècle, date probable des murs de la nef.
Le choeur est construit au XIIIe siècle et est couvert au XVIe d’un lambris.
La nef a été profondément remaniée au XVIIIe s. notamment les charpentes avec la pose du tabouret (date de 1747 sur le dernier entrait)
La commune des Noyers fut rattachée à Gaillefontaine en 1802.
L’église en 1882
L’église en 2017






