Centre-Val de Loire, Eure-et-Loir (28)
la Saucelle, église Sainte-Anne
Édifice


NB : La notice publiée ci-dessous est une notice provisoire, la notice scientifique étant en cours de rédaction.
description
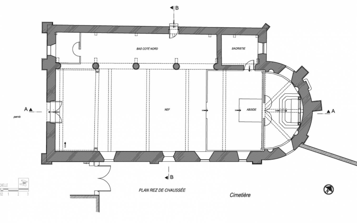
La partie la plus ancienne de l’église Sainte-Anne est son chevet roman, hémicirculaire, flanqué de contreforts peu saillants en grison. Une baie d’axe avec un encadrement en grison se devine, bouchée en maçonnerie, derrière un plus gros contrefort rapporté après. Les deux contreforts rapportés au chevet ont été placés au droit des entraits rayonnants du chevet, probablement au moment de la construction de la charpente, ou après.
L’édifice a été augmenté d’un bas-côté au Nord, peut-être à la fin du XVe siècle ou au début du XVIe. La charpente présente le même type d’ornements que celle de la nef. On note aussi que l’église n’est pas strictement orientée, son chevet est au Nord-Est.
Les arcatures en plein cintre ornées de dais architecturaux sont de style Renaissance, probablement une reconstruction du milieu du XVIe siècle. Les trois dais architecturaux qui ornent les écoinçons, tous différents, ont un dessin très élaboré, milieu du XVIe siècle, qui évoque des gravures de Philibert de l’Orme que des bâtisseurs auraient pu voir.Le haut clocher en charpente et la façade occidentale, en maçonnerie de moellons avec modénature en briques, contreforts et encadrements en grison et briques, semblent dater de la fin du XVIIe siècle ou du début XVIIIe. Enfin, la sacristie a été aménagée tardivement, probablement au cours du XVIIIe siècle, en obturant la cinquième arcade du collatéral et en fermant sa dernière travée par un refends
Sans que l’on connaisse précisément le rôle qu’elles ont joué aux origines de la paroisse Sainte-Anne, deux institutions ont été présentes à La Saucelle dès le XIIe siècle et jusqu’à la Révolution :
- les Templiers puis les Hospitaliers de Saint-Jean, qui possédaient pas moins de trois granges autour du village de La Saucelle, des moulins et de nombreuses terres,
- les Chanoines de Saint-Augustin de l’abbaye de Saint-Vincent-aux-Bois, qui ont tenu le prieuré-cure de Sainte-Anne de La Saucelle du XIIe au XVIIIe siècle.
Les seigneurs locaux, de Belleville et La Saucelle, ont probablement joué aussi un rôle dans l’histoire de l’église paroissiale, en contribuant à ses agrandissements et à ses embellissements.




