Paizay-le-Sec, église saint-hilaire
Édifice


NB : La notice publiée ci-dessous est une notice provisoire, la notice scientifique étant en cours de rédaction.
description
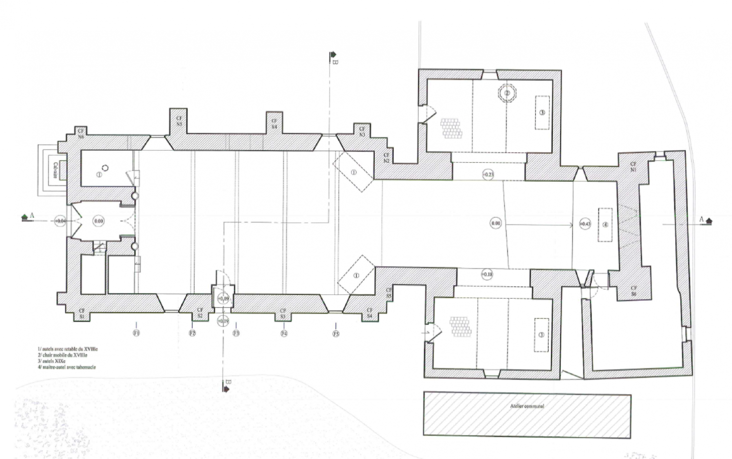
L’édifice, construit en pierre de taille calcaire, se compose d’un plan en croix latine se terminant par un chevet plat, Le chœur est flanqué de deux chapelles au nord et au sud. Au sud-est du chœur se trouve la sacristie en limite de voirie.
La structure de l’église Saint Hilaire est aujourd’hui composite. L’édifice a fait l’objet de transformations et d’aménagements, dont certains sont absents des sources écrites, complexifiant de ce fait la lecture de l’histoire de l’église. On trouve la mention de l’église Saint Hilaire dès 1093. La nef, les deux contreforts adossés à la nef à l’est ainsi que les ouvertures, aujourd’hui bouchées, à linteau monolithique gravé appartiennent sans doute à l’édifice mentionné dans les textes à cette période. Le plan de l’ensemble de l’édifice primitif n’est cependant pas connu, l’emplacement et la physionomie du chœur sont indéterminés. La maçonnerie de la nef diffère de celle du chœur; l’église a été agrandie, probablement au Xllème siècle.
L’église connaît à nouveau des transformations de ses ouvertures au XVIe siècle. Deux larges baies en plein-cintre sont percées au nord et au sud de la nef, ainsi qu’une porte au sud. La clé de l’arc de cette porte, datée de 1596, porte des armes attribuées à Pierre du Drac des Mées, de Bois-Morand, des Clairbaudières et des Hors de Paizay-le-Sec.
Avant 1790, la commune de Paizay-le-Sec faisait partie de la châtellenie de Saint-Savin, du ressort de Montmorillon. La cure était à la nomination de l’abbé de Saint-Savin.
Au XIXe siècle, quelques transformations sont réalisées. La façade ouest, ainsi que le clocher, ont été remaniés au début du siècle, vers 1820. En 1829, le curé signale que l’église est trop petite et vétuste, il demande la construction de deux chapelles latérales et la réparation du vaisseau de la nef. Il ne sera exaucé qu’en 1857, lorsqu’est construite la chapelle Sainte Radegonde (sud), grâce au financement apporté par une loterie. Ce propos est confirmé par le plan cadastral napoléonien sur lequel l’église n’est pourvue d’aucune chapelle latérale. La date de la construction de la deuxième chapelle n’est pas connue mais est manifestement postérieure à 1857, donnant à l’édifice son plan actuel en croix latine.



