Auvergne-Rhône-Alpes, Allier (03)
Liernolles, Église Sainte-Catherine
Édifice


Située dans l’ancien diocèse de Clermont, l’église Sainte-Catherine était, avant la Révolution, à la présentation de la prévôté de Saint-Pierre d’Evaux (Creuse).
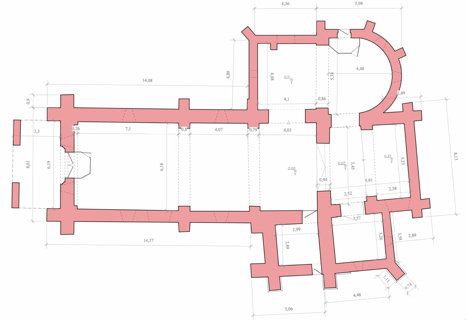
Celle-ci date de la seconde moitié du XIIe siècle et comprend une nef de trois travées inégales avec un sanctuaire carré et un chevet plat. Le chœur est flanqué, à gauche, d’un clocher roman et d’une petite chapelle du XVe siècle, voûtée en ogive, transformée aujourd’hui en sacristie, celle-ci même tenue à droite d’une vaste chapelle édifiée vers 1868, pour les châtelains de la Forêt.
La partie la plus ancienne est le clocher, carré à sa base, octogonal à la hauteur des fenêtres. Il est surmonté par une élégante flèche en pierre. La façade est éclairée par trois fenêtres qui surplombent un porche rustique qu’on appelle en Bourbonnais un « caquetoire » ; cet abri couvert d’ardoise date du XVIe siècle.
Le projet en images
Actualités liées

Immobilier
Comité d’action d’avril 2024
Le comité s’est réuni le 30 avril. Après avoir étudié les différents projets avec attention, le jury a décidé d’accorder l’aide de la […]

Immobilier
Comité d’action de Janvier 2024
Castelnau-d’Auzan-Labarrère (Gers) – église Saint-Jean-Baptiste-de-Beziey Les rapporteurs de la Sauvegarde se sont réunis avant la pause estivale afin d’étudier de nouvelles demandes d’aide […]

Immobilier
Comité d’action de Mars 2024
Castelnau-d’Auzan-Labarrère (Gers) – église Saint-Jean-Baptiste-de-Beziey Les rapporteurs de la Sauvegarde se sont réunis avant la pause estivale afin d’étudier de nouvelles demandes d’aide […]











