Nouvelle-Aquitaine, Lot-et-Garonne (47)
Moncrabeau, Église Saint-Clair d’Artigues
Édifice


EGLISE Saint-Clair d’Artigues. Moncrabeau est célèbre pour son académie des Menteurs, « il n’est pire menteur que de Moncrabeau ».
L’édifice a été construit sur le point culminant des coteaux séparant les vallées de la Baïse et de l’Osse. Si l’église est mentionnée au XIIIe s. dans le cartulaire d’Agen, sous le nom de chapelle d’ Artigues, l’édifice actuel a été construit au XVIe s. à l’instigation de Jean Marre, évêque de Condom, grand bâtisseur, puisqu’il est à l’origine de la reconstruction de la cathédrale d’Auch puis de celle de l’église d’Eauze, des embellissements de l’église de Simorre, de la reconstruction générale de Condom.
La chapelle d’Artigues changea de vocable en 1604 et fut consacrée à saint Clair, cependant elle dut attendre 1877 pour accueillir un fragment du corps de ce saint, provenant de l’église Sainte-Eulalie de Bordeaux.
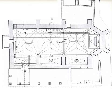
Son plan se compose d’une nef de deux travées, d’une travée faisant chœur et d’une abside à trois pans. Deux chapelles et une travée d’entrée forment un bas-côté au sud. Une sacristie fut ajoutée au nord, et au sud un grand auvent abrita l’entrée principale. L’édifice est précédé à l’ouest d’un clocher de plan presque carré, peu débordant. L’ensemble constitue une construction d’une ampleur exceptionnelle et de très grande qualité, en particulier le superbe portail méridional de 1541, dont l’arc en anse de panier est flanqué de deux pilastres à chapiteaux plats. La corniche saillante et les piédroits sont ornés d’un abondant et classique décor géométrique, où domine le losange. Trois niches sculptées dans le vocabulaire de la Renaissance sont placées au-dessus du portail qu’abrite un ample auvent ; ce dernier protège presque toute la façade sud ; il s’appuie sur sept piliers en pierre depuis le nivellement du cimetière qui entourait l’édifice en 1877. Si l’on fait le tour extérieur de l’église, on peut constater que les fenêtres ont été murées au nord lors de la construction de la sacristie et des contreforts. Les baies du chevet ont été conservées avec leur remplage, ainsi que les fenêtres hautes du côté sud. Au sud-est, un appentis moderne cache la plus grande partie d’une porte dont le cadre est orné du même répertoire Renaissance que la porte principale. L’église est contrebutée sur chacune de ses faces par dix contreforts.
À l’intérieur, l’édifice comporte une nef de trois travées voûtées de croisées d’ogives à liernes et tiercerons et un chœur voûté quadripartite, l’ensemble de ces voûtes comportant des clefs sculptées. Les chapiteaux conservés sont assez dégradés ; le décor, à personnages, coquillages ou scorpions, peut être daté du début du XVIe siècle.
Cet édifice présente un intérêt tout particulier comme jalon de l’introduction de la grammaire de la Renaissance et comme témoin de l’influence des grands chantiers sur les productions plus modestes, qui s’explique ici par la proximité de la cour de Nérac : on ne doit pas sous-estimer en outre le rôle de Jean Marre. C’est ainsi que le décor à losanges et cercles en fort relief, présent dans les châteaux de la Loire vers 1515-1525, se répand à Nérac vers 1530 et, de là, gagne les paroisses plus rurales ; on peut y lire également l’influence du retable de la cathédrale d’Auch, daté de 1524.
La commune, qui avait entrepris dès 1988 la restauration de l’église, a demandé en l’an 2000 l’aide de la Sauvegarde de l’Art français pour la poursuite des travaux. L’association lui a accordé 7 622 € pour la restauration des maçonneries de deux travées.
Fr. B.


