Centre-Val de Loire, Loiret (45)
Montcorbon, Église Saint-Saturnin
Édifice


L’église de Montcorbon est placée sous le vocable de saint Saturnin. L’église à la monumentale flèche, véritable signal dans le paysage, est implantée au cœur du village le long de la rue principale. On sait qu’il existait une chapelle primitive en 1116, la paroisse desservie par le prieuré de Douchy et le fief de Montcorbon relevant du seigneur de Triguères. La guerre de Cent ans entraîne la ruine de l’édifice, reconstruit au XVIe siècle.
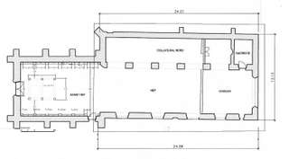
L’église comprend un vaisseau unique, articulé en deux corps de bâtiments : la nef, le chœur à chevet plat accosté au nord par un bas-côté précédé par une avant-nef rectangulaire. Extérieurement deux édifices à la volumétrie différente semblent juxtaposés. La nef est couverte d’un toit à deux versants de tuiles plates, le versant nord, venant recouvrir le bas-côté. Au sud, le mur gouttereau est percé de quatre baies en arc brisé aux ébrasements remaniés en brique. Les murs sont recouverts d’un enduit, le chevet percé d’une grande fenêtre de style Renaissance, contemporaine du vitrail daté 1861. À l’ouest, en décrochement, apparaît le pignon couvert de l’avant-nef, au haut toit d’ardoise à deux versants d’où émerge le fût octogonal de la tour qu’animent quatre petits abat-son triangulaires et que surmonte la flèche octogonale.
La façade ouest, au pignon découvert, est percée d’un beau portail du début du XVIe s. comprenant une porte et une fenêtre en tympan, les hauts murs épaulés de contreforts en grès assisé, contreforts d’angle jumelés en équerre flanquant la façade. Les piédroits à bases prismatiques sont flanqués de pinacles ornés d’animaux, de choux frisés.
Sur le linteau prend naissance un gâble au réseau lacunaire qu’orne un putto sculpté et que ponctue un petit chapiteau. La fenêtre bouchée laisse apparaître les têtes de trois lancettes.
À l’intérieur, la nef de quatre travées – plus une travée de chœur avec la sacristie dans l’angle nord est – est couverte d’une voûte en plâtre en berceau brisé, le vaisseau ouvrant sur le bas-côté au moyen de cinq ouvertures en arc brisé. Les murs sont enduits au plâtre simulant la pierre, traitement résultant probablement de travaux de la seconde moitié du XIXe siècle. À la naissance de la voûte court une modénature ornée d’une frise de dents de scie. Trois entraits du XVIe s. scandent la nef. L’avant-nef, dont la vocation est de supporter la flèche, est coiffée d’une voûte en plâtre en berceau anse de panier, plus basse que la voûte de la nef. Contre les deux murs est actuellement apparent le chevalement de poteaux de bois et au centre une structure de bois a été construite il y a plusieurs décennies en raison du fléchissement de pièces de bois ayant entraîné un mouvement de dévers de la flèche vers le sud.
L’église conserve une petite série de sculptures, principalement une belle pietà de la fin du XVIe s., classée Monument historique, deux statues en bois du XVIe siècle : une Vierge à l’Enfant et un saint Sébastien, deux bustes de saint Saturnin et un beau crucifix du XVIIe siècle. Le grand vitrail du chœur, signé Lobin à Tours, représente l’Ascension. L’église de Montcorbon se démarque par l’éloquent accent de sa flèche.
La première tranche de travaux a consisté en la restauration de la charpente et en la réfection de la couverture en tuiles plates de la nef. Pour ces travaux la Sauvegarde de l’Art Français a accordé une aide de 8 000 € en 2009.
Pierre-Xavier Hans
Bibliographie : Étude préalable à la restauration, cahier 1 rapport de présentation, Gr. André, arch.





