Occitanie, Pyrénées-Orientales (66)
Nyer, Chapelle Notre-Dame de la Roca
Édifice


DESCRIPTION
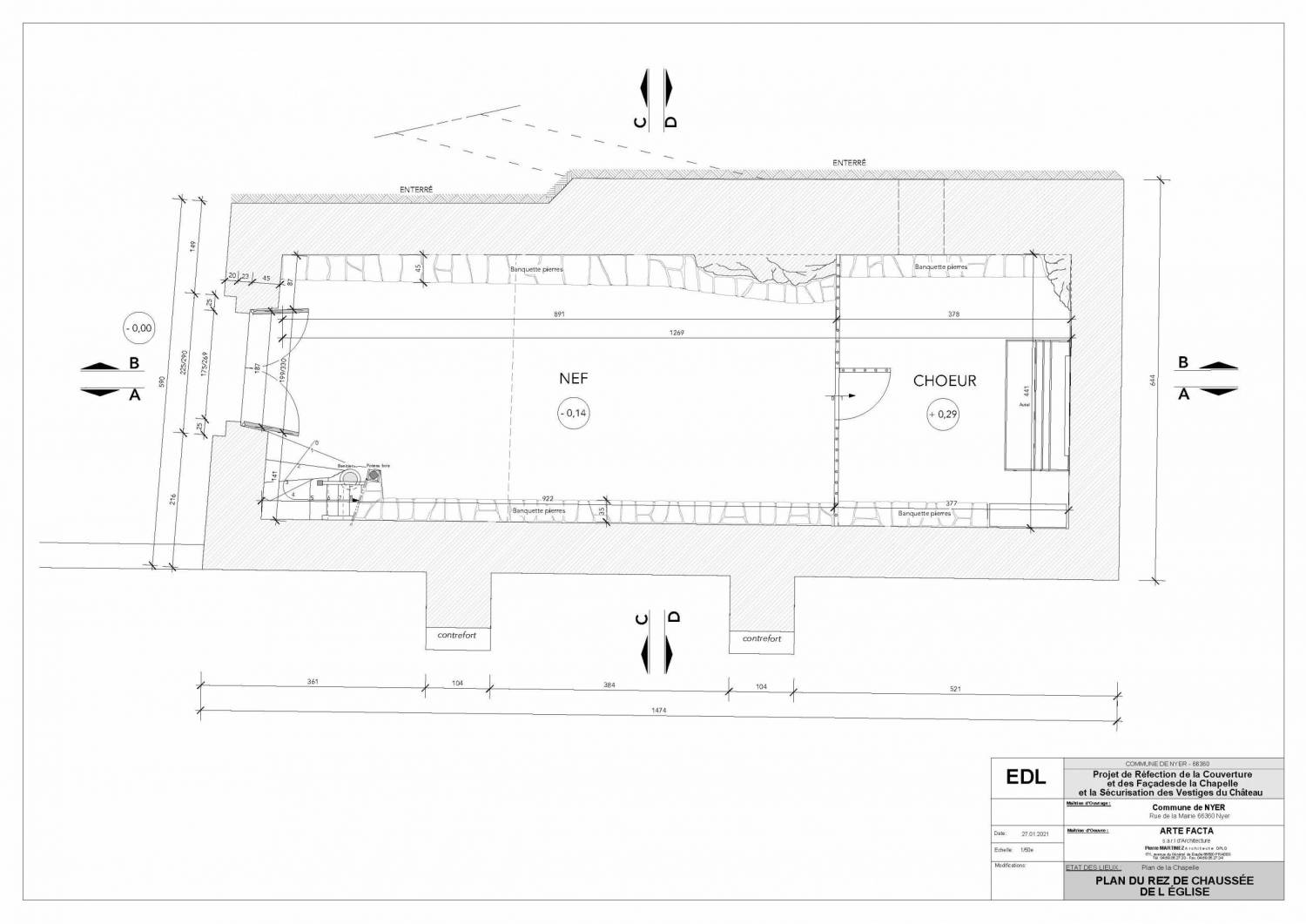
Notre Dame de la Roca est un édifice de plan rectangulaire s’élargissant légèrement d’est en ouest. Cette irrégularité et les positionnements de son entrée en façade occidentale et de son autel à l’opposé découlent de la stricte adaptation de la construction à la topographie des lieux.
Nef et chœur sont individualisés par la présence d’en emmarchement de deux degrés et d’une grille en fer. Ils sont couverts d’une seule et même voûte longitudinale au tracé en berceau plein cintre. Elle s’élève à 7 mètres au-dessus du sol.
Une tribune en bois occupe le fond de la nef à mi-hauteur. Le départ de son escalier d’accès en bois est constitué de quatre marches maçonnées en pierres.
L’église originellement couverte d’une toiture à double pente fut pourvue, grâce au remontage de cette extrémité, d’un toit à simple pente. La mise en place du clocheton n’a pu intervenir qu’après cette modification.
Le site de la Roca est accessible par la route traversant le village puis par un chemin forestier aménagé à flan de coteau dans les gorges de Nyer. Situé à une altitude de 884 mètres, il est blotti au cœur d’un cirque rocheux, à l’extrémité d’une crête orientée est/ouest.
Les édifices qui occupent le lieu ont été construits en matériaux extraits sur place. Ils s’intègrent ainsi parfaitement à leur écrin naturel au sein duquel le visiteur ne les remarque que tardivement à son approche. Cette caractéristique constitue l’un des principaux atouts de la Roca.
historique
Le territoire de Nyer est mentionné dès 871. Le château est mentionné au siècle suivant. Il défendait l’entrée des gorges de la Rivière de Mantet. Le terme « Roca » désigne habituellement un type primitif de fortification où la défense était assise sur le roc et assurée surtout par les escarpements.
Le site fortifié était au début du XIIIe siècle le siège d’une baronnie dépendant des comtes de Cerdagne.
En 1375, la famille la Roca n’ayant aucun descendant, les possessions et le titre de baron revinrent à la famille de Banyuls.
Après l’abandon de la forteresse médiévale au XVIIIe siècle, la chapelle du château, dédiée à la vierge, subsista et fut agrandi avec les pierres de l’ancien château et de son église.
L’endroit trop escarpé ne permettant pas la construction d’un sanctuaire, il fut décidé construire l’église en face, sur l’ancienne chapelle du château. La porte en ogive, en pierre de taille, en est l’un des vestiges.
La construction d’une partie de la façade septentrionale de l’église repose sur un mur ayant appartenu à un bâtiment antérieur. Il reste impossible d’affirmer que celui-ci correspondait à l’église primitive de La Roque.
Toutefois, il faut noter que ce ressaut est clairement chaîné aux maçonneries inférieures du premier contrefort. Ainsi, le bâtiment antérieur devait-il se développer sur une hauteur suffisamment importante pour nécessiter son épaulement. Cette caractéristique peut également correspondre à un mur de soutènement de terrasse.
Lorsqu’il aborde le sujet de la construction de l’église, l’abbé Giralt (1851-1938) précise que l’ancienne chapelle dédiée à Notre-Dame était devenue trop exiguë pour accueillir les pèlerins, qu’elle faisait 3 mètres de côté et qu’elle ressemblait à une crypte ou une église souterraine.
Initiés sous la procuration Mauran, les travaux de reconstruction de l’église de la Roca débutèrent en 1690. Malgré le concours des habitants de Nyer et des environs, la situation financière du domaine engendra leur interruption dès 1692.
Reprise en 1719, la réalisation du nouvel édifice fut achevée en 1722, année de sa bénédiction, le 25 mai.
A la Révolution, les biens du seigneur de Nyer, Raymond VII de Banyuls, exilé en Espagne le 29 juin 1791, furent liquidés. Cette vente ne mentionne à aucun moment le château de la Roca qui avait probablement été progressivement abandonné suite à la construction du château de Nyer, généralement attribuée à Jehan IV de Banyuls et placée à la fin du XVe siècle. A son retour, la famille s’installa dans l’orléanais.
Des travaux de mise hors d’eau de l’édifice doivent être entrepris urgemment car les infiltrations d’eau ont déjà fragilisé la cohésion des couvertures en lloses et des maçonneries de la chapelle et de sa sacristie ou chapelle haute.
La commune de 151 habitants, à l’engagement patrimonial fort, souhaite mener à bien l’important chantier de restauration du site de la Roca qui nécessitera d’être approvisionné par hélicoptère.
D’après l’étude historique menée par la S.A.R.L. ACTER en 2006.















