Grand Est, Aube (10)
Puits-et-Nuisement , Église de l’Assomption-de-la-Vierge
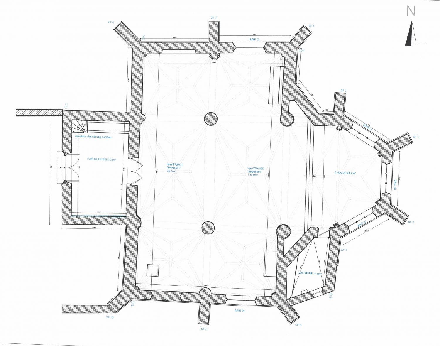
Édifice


DESCRIPTION
L’église, inachevée, est composée d’une abside pentagonale et d’un transept double ; avec un clocher à la croisée du transept.
HISTOIRE
L’ensemble date du second quart du XVIe siècle, vers 1530. La porte d’entrée intérieure date de 1821, précédée d’un simple porche au portail Renaissance. Au début de la construction, cet édifice devait s’ouvrir complètement entre le chœur et le transept pour composer un plan dit Montiéramey. Un élément de maçonnerie est venu rattacher l’angle des murs aux colonnes pour rattacher les autels.








