Provence-Alpes-Côte d’Azur, Hautes-Alpes (05)
Puy-Saint-Pierre, Chapelle de Puy-Richard
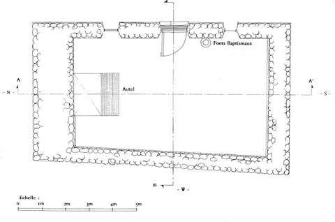
Édifice


Oratoire de Puy-Richard. A 1600 m d’altitude, dans un merveilleux paysage de montagne, le hameau, qui dépend du village de Puy-Saint Pierre, domine la ville de Briançon et les vallées de la Durance et de la Guisane.
L’origine de la chapelle, dédiée à saint Pons et saint Sixte, remonte au 25 août 1497. « L’autorisation de bâtir une chapelle en l’honneur de saine Sixte et d’y dire la messe est donnée par l’archevêque Baile ». Ce modeste édifice, de plan légèrement trapézoïdal, est implanté nord-sud sur la pence de la montagne, les murs goutterots se trouvant donc à l’ouest et à l’est. Un petit clocher à arcade s’élève au-dessus du mur pignon nord.
La Sauvegarde de l’Arc Français a participé au sauvetage de ce petit ermitage en 1996 par une subvention de 50 000 F destinée à la restauration de la toiture et des maçonneries des murs pignons et du mur goutterot ouest.
E. C.


