Occitanie, Pyrénées-Orientales (66)
Reynès, Chapelle Notre-Dame du Vila
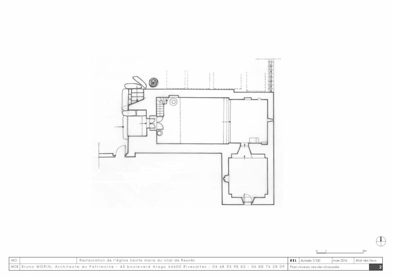
Édifice


Cette église est ceinte d’un cimetière formant un enclos paroissial. Orientée, elle est constituée d’une nef et d’un chevet plat, couverte de berceaux en plein cintre. Une baie d’axe dans le chevet éclairait le choeur. Les murs gouttereaux nord de la nef et du choeur sont partiellement enterrés du fait de la déclivité du terrain. Nef et choeur sont couverts en batière, avec des tuiles canales.
Un portail de pierre, à l’ouest est couvert en plein cintre et surmonté d’un escalier en pierre conduisant au clocher en arcade. Une sacristie adossée en appentis au sud du choeur.
La fondation du hameau du Vila remonte à l’époque romaine quand une voie de communication est créé à cet endroit, la via vallespiriana. La première mention de Reynès date de 988.
Au XIe siècle, le village est fortifié et doté d’un château dont il ne reste aucun vestige aujourd’hui. Il appartient au comté de Besalu. En 1111 le comté de Besalu passe aux mains de Jacques 1er, roi d’Aragon et comte de Barcelone.
L’église actuelle est construite entre le XIe et le XIIe siècle. Elle est mentionnée en 1114 dans dans le testament du comte de Besalu. La chapelle est consacrée à nouveau à cette date, puis par bulle pontificale de 1168 et est donnée au monastère Del Camp (à Tresserre).
La création d’un escalier extérieur pour accéder au clocher date de 1775.



