Occitanie, Lot (46)
Saint-Vincent du Pendit, Eglise Saint-Vincent
Édifice


NB : La notice publiée ci-dessous est une notice provisoire, la notice scientifique étant en cours de rédaction.
La paroisse est mentionnée au XIe siècle ; l’évêque avait la nomination à la cure (Clary, 1986). Le premier état observable de l’édifice, et en particulier l’abside construite en bel appareil de pierre de taille, date peut-être de la seconde moitié du XIIe siècle ou du début du XIIIe siècle. L’actuelle sacristie pourrait dater du XIIIe siècle, mais la voûte d’ogives est insérée après-coup.
Une importante campagne de travaux est réalisée probablement à la fin du XVe siècle ou au début du XVIe siècle, à en juger d’après le style des peintures murales conservées. La voûte en anse-de-panier de la nef est sans doute moderne. La tour-clocher est ajoutée sur le flanc sud au XIXe siècle.
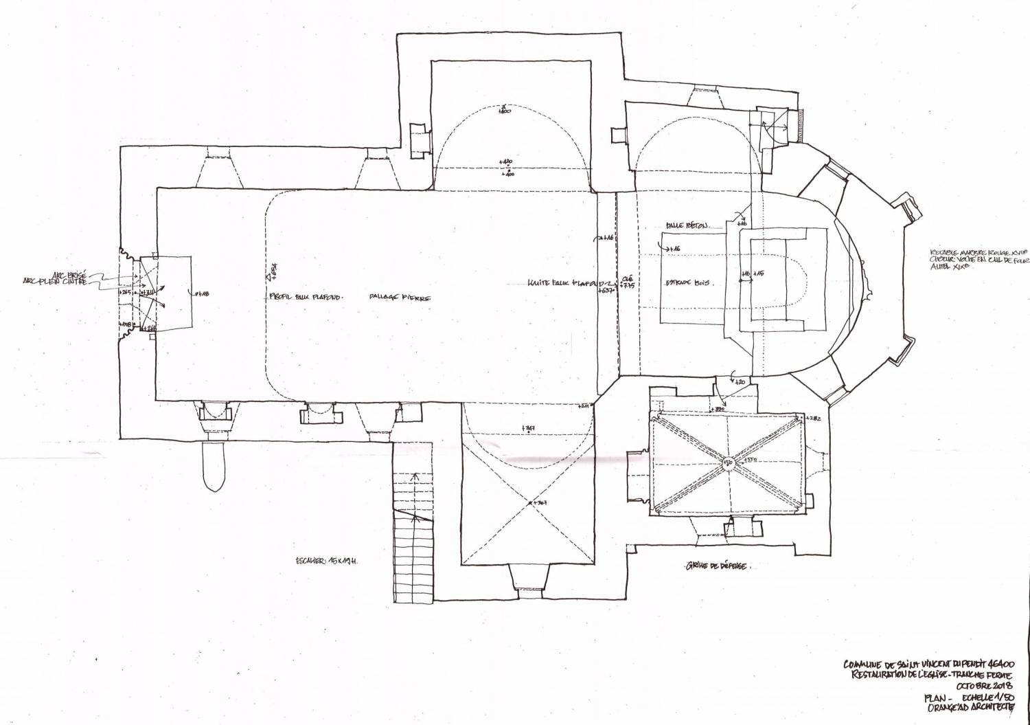
L’église actuelle qui appartient en majeure partie à la période romane porte la marque de nombreux remaniements. Elle comporte une nef unique de trois travées sur lesquelles se greffent deux chapelles formant transept, un chœur profond et une abside en hémicycle à l’intérieur et à pans coupés à l’extérieur.
Un collatéral, sur la première travée, duquel est installé le clocher dont les parties hautes ont été reprises au XIXème siècle, a été érigé sur le flanc méridional de l’édifice.
Une sacristie au nord et une chapelle seigneuriale au sud s’ouvrent sur la travée de chœur. L’abside et le chœur, voûtés en cul de four, sont d’origine romane comme en témoigne une partie de la baie axiale soulignée d’un tore encore visible à l’intérieur.
Les baies latérales ont été modifiées, vraisemblablement lors de la mise en place d’un retable en marbre rouge du XVIIème siècle, dont il subsiste la base autour de l’abside.
La chapelle seigneuriale, au sud, voûtée sur croisées d’ogives a été sans doute aussi remaniée à la même époque.
A l’ouest, au-dessus de la porte d’entrée de l’église subsistent des fragments de peintures murales du XVème siècle, consolidées en 2010, figurant une Annonciation, œuvre d’un atelier ayant également travaillé à St Jean Lespinasse et Soulomès.
A revers de la façade on discerne une autre scène malheureusement très radée où se devine un Christ et un blason où figure un lion surmonté de besants, probablement les armes des d’Araqui, seigneurs du lieu.







