Bourgogne-Franche-Comté, Côte-d’Or (21)
Saulieu, Église Saint-Saturnin
Édifice


L’origine de l’église Saint-Saturnin de Saulieu remonte à la fin du XIIIe siècle et au début du XIVe siècle. Le premier texte mentionnant la paroisse date de 1313. C’est un mandement de l’évêque d’Autun qui reçoit une transaction conclue entre Bertrand, recteur de la paroisse de Saulieu et ses paroissiens, concernant le règlement pour les noces et les sépultures.
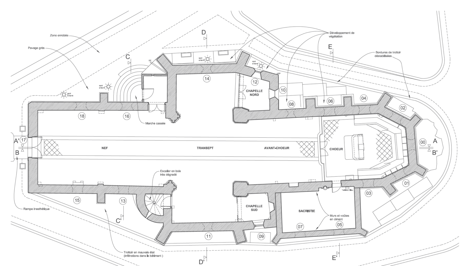
L’édifice de forme allongée comporte une nef et un chœur à pans séparés par un transept dont les bras donnent accès à deux chapelles latérales orientées. Contre le mur sud, s’élève une sacristie à deux travées, un petit appentis s’appuyait contre la façade occidentale avant d’avoir été déposé il y a peu de temps. Un petit bâtiment d’entrée, auquel on accède par un escalier, est placé devant l’ancienne porte latérale de la nef, porte datant du XIIIe siècle. Celle-ci est ornée d’un boudin terminé par deux culots sculptés de petites figures humaines.
De la fin du XIIIe siècle date la croisée du transept sur laquelle est édifié le clocher d’époque moderne. La première travée du chœur est voûtée d’ogives aux culots des retombées ornés de têtes humaines, représentant peut-être des fondateurs et d’animaux, dont un chien et peut-être un cochon et un agneau en clef de voûte. De la même période datent également les deux chapelles trapézoïdales latérales et le transept dans lequel on retrouve des piliers occidentaux aux faisceaux de colonnettes et des chapiteaux à crochet caractéristiques, les piliers orientaux sont consolidés et forment des blocs de pierre sans décor. La nef aurait été reconstruite à la fin du XVIIe siècle.
Le chœur d’origine était « avant la partie avec la piscine liturgique et à l’Est on avait un chevet plat dont le formeret a été maladroitement transformé en arc-doubleau lorsqu’on a ajouté le chœur actuel ». Aux XVIIIe et XIXe siècle, on a rallongé le chœur d’une travée carrée couverte d’une voûte sexpartite pastichant la travée médiévale et d’un chevet à trois pans éclairé de baies en plein cintre.
La façade de la nef est sobre et remaniée au XVIIIe siècle. Les menuiseries des deux portails quelque peu mutilés sont les seuls témoins de l’époque médiévale.
L’ancienne voûte lambrissée ou charpente de la nef a été remplacée par une voûte à deux croisées d’ogives en plâtre reposant sur des culots moulurés d’une esthétique assez lourde. La façade occidentale avec sa rosace est rhabillée sommairement avec l’ajout d’un auvent.
Le beau porche médiéval, au côté nord fut autrefois masqué par un édicule fermé faisant office de tambour, le petit édifice est toujours en place. L’intérieur de l’église aurait été enrichi d’un décor dont ne subsiste que des vestiges, vitraux colorés, support de statues et chemin de croix en plâtre.
D’après l’étude de Céline Bérette, historienne du patrimoine.
Le projet en images
Actualités liées

Immobilier
Comité d’action d’avril 2025
La Sauvegarde de l’Art Français a réunit son dernier comité d’action de l’année le 3 décembre 2024. Au terme d’un examen approfondi, 14 […]

Immobilier
Comité d’action de février 2025
La Sauvegarde de l’Art Français a réunit son dernier comité d’action de l’année le 3 décembre 2024. Au terme d’un examen approfondi, 14 […]

Immobilier
Comité d’action de décembre 2024
La Sauvegarde de l’Art Français a réunit son dernier comité d’action de l’année le 3 décembre 2024. Au terme d’un examen approfondi, 14 […]











