Provence-Alpes-Côte d’Azur, Alpes—Maritimes (06)
Sigale, Église Saint-Michel-et-Saint-Blaise
Édifice


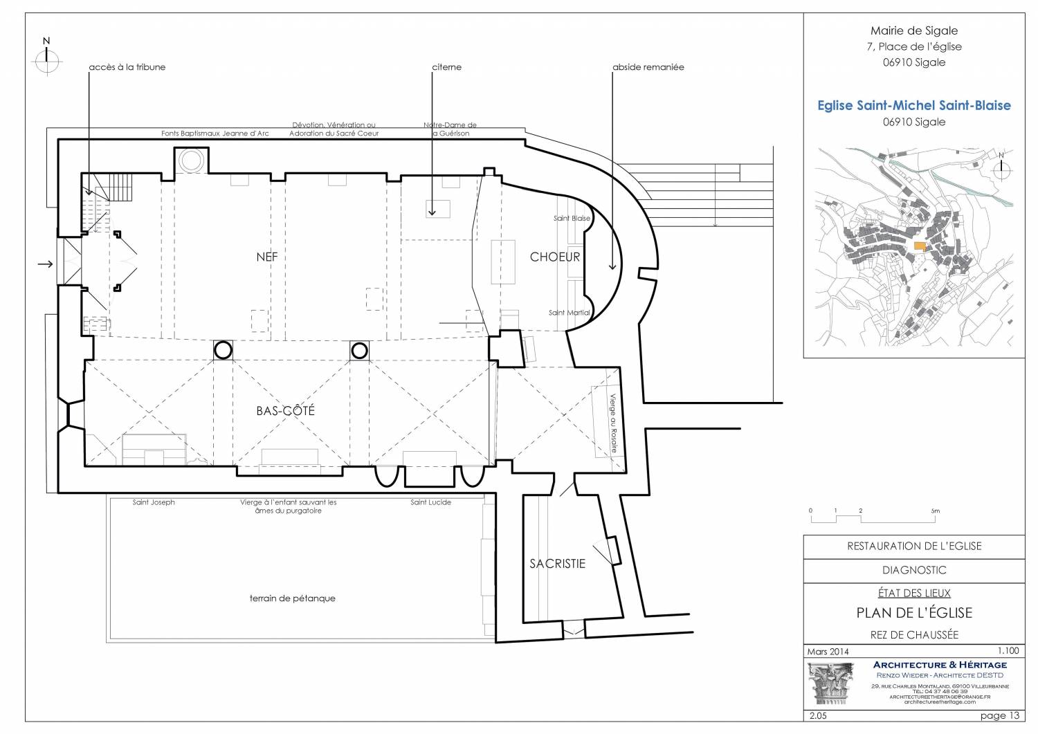
L’église de style néo-roman propre aux églises de cette région bâties entre le XIIe et le XVe siècle, est composée d’une nef de quatre travées et d’un choeur à chevet semi-circulaire. La nef est voûtée en berceau rythmée par de puissants doubleaux.
Un collatéral de trois travées voûtées d’ogives est séparé de la nef par trois arcades en plein cintre reposant sur des colonnes à chapiteaux sculptés. Une chapelle au sud du choeur assure la continuité de ce collatéral. Une sacristie est accolée au mur sud de cette chapelle.
Les murs sont en pierres de taille et les couvertures en tuiles creuses posées sur des plaques de Fibrociment. Un clocher à 3 arcades surmonte le pignon ouest.
Le village de Sigale est né au XIVe siècle de la réunion de deux villages : Cigale et Cigalon. L’église Saint-Michel et Saint Blaise est construite à la jonction des castrums. Au XIIIe siècle la nef de l’église est bâtie, par les Templiers, à l’emplacement d’un ancien Temple de Diane. En 1516, le vicaire général de l’évêché de Glandèves autorise la construction d’un collatéral au sud de l’église.
En 1622, une chapelle de Pénitents blancs se trouvait sur le flanc sud de ce collatéral. Cette chapelle est ensuite détruite au XXe siècle.




