Hauts-de-France, Oise (60)
Thibivillers, Église Saint-Pierre
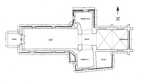
Édifice


L’église Saint-Pierre possède un plan en croix latine. La nef est un vaisseau unique couvert d’un lambris en berceau brisé sur entrait, éclairé par des baies en plein cintre agrandies à l’époque moderne, à l’exception de la seconde baie du flanc sud, plus modeste, qui pourrait, avec l’archivolte et le tympan appareillé d’une porte bouchée du flanc nord, témoigner d’une construction remontant à l’époque romane.
Le mur-pignon de la façade est ajouré d’une baie à deux lancettes au remplage flamboyant. Le double portail flanqué de pinacles finement découpés est protégé par un porche en charpente et torchis.
À son extrémité orientale, la nef ouvre par un arc brisé sur la croisée du transept dont l’élévation est un peu plus haute que celle de la nef. Les baies, de taille variable, ne peuvent être antérieures au XVIe siècle ; celle qui éclaire le mur occidental du bras sud possède un tympan à remplage. Bras et croisée sont voûtés d’ogives sur consoles. La mouluration pincée des arcs et le profil incurvé des doubleaux plaide pour une exécution tardive, sans doute du XVIe siècle. Une tourelle polygonale d’escalier, dans l’angle du bras nord et de la nef, dessert les combles. Le clocher de croisée, de plan carré, est composé d’un niveau maçonné, éclairé de deux baies par côté, surmonté d’une structure charpentée compliquée, qui superpose un niveau carré en retrait sur les maçonneries puis un clocheton octogonal coiffé d’un lanternon cantonné de pyramidions.
Le chœur date du XIIIe siècle. À la différence de la nef et du transept construits en silex noyé dans le mortier, il est soigneusement appareillé en pierre de taille. Ses deux travées barlongues sont voûtées d’ogives retombant sur des colonnes. Une grande baie, composée de deux paires de lancettes sous oculi et sommée d’un oculus plus grand à sept lobes, éclaire le mur plat du chevet. Sur les côtés sont percées des baies à deux lancettes sous oculus. Une archivolte à pointes de diamant coiffe la baie du mur sud.
L’église de Thibivillers offre donc un intéressant témoignage des agrandissements et embellissements successifs d’une église de village d’assez belle ampleur, avec une nef romane comportant peut-être à l’origine trois vaisseaux, agrandie à la fin du Moyen Âge pour former le vaisseau unique actuel, dilaté par rapport au clocher de croisée. Le chœur, soigneusement construit au XIIIe s., n’a pas connu de modifications importantes, à l’exception des remplages des baies.
La Sauvegarde de l’Art français a accordé en 2001 une subvention de 10 671 € pour l’achèvement de la mise hors d’eau de l’édifice avec restauration des façades de la nef et du transept.
D.S.
Bibliographie :
Y.-B. Frion, Nouveau précis statistique sur le canton de Chaumont, Beauvais, 1859, p. 185-186.
B. Duhamel, Guide des églises du Vexin français, Paris, 1988, p. 304-306.



