Occitanie, Gers (32)
Tillac, Eglise Saint-Jacques-le-Majeur
Édifice


D’après l’étude préalable réalisée par Le Pavillon d’Architectures – Benoit Houël, architecte Urbaniste et Julien Tajan, Architecte du patrimoine.
Description
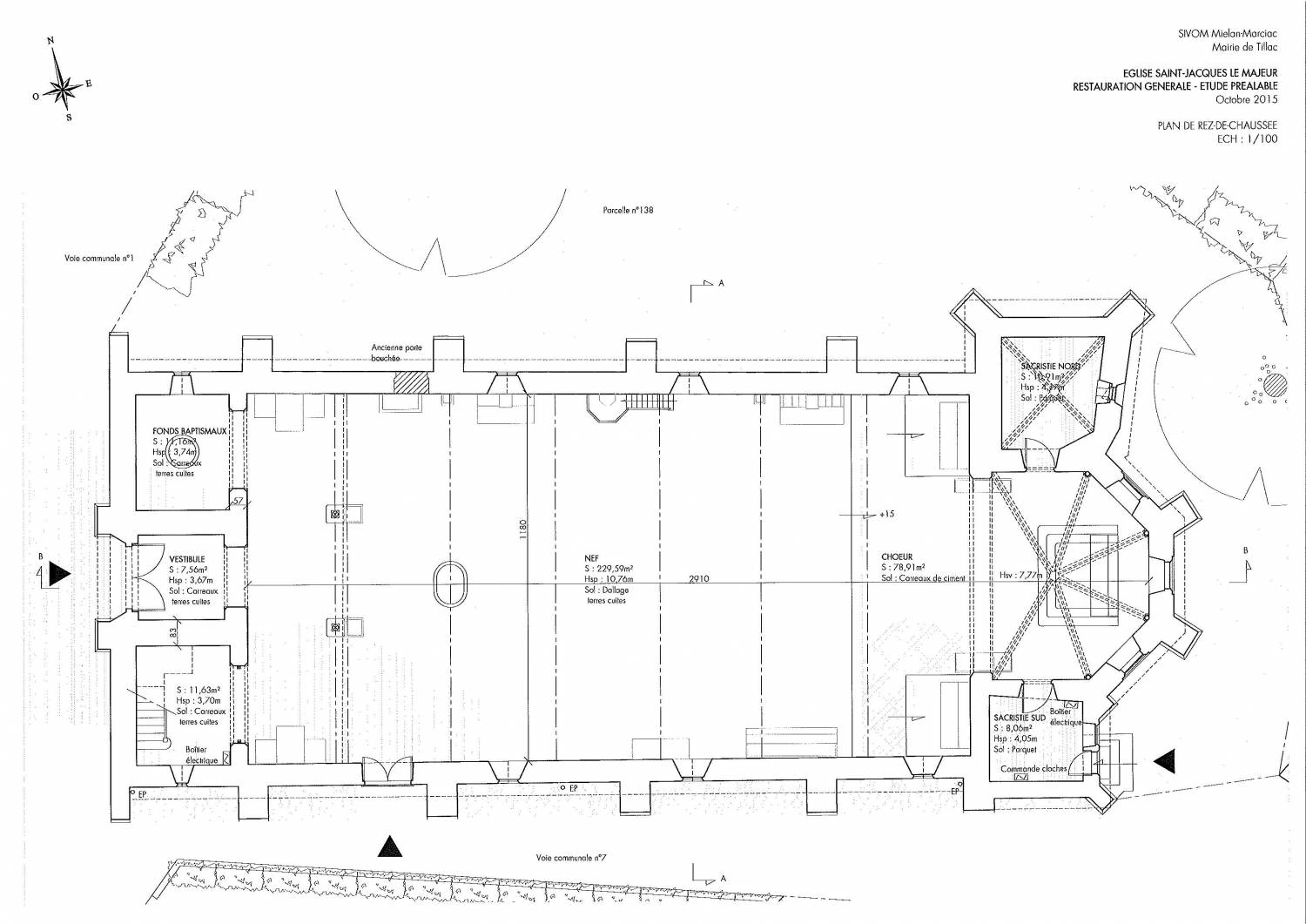
L’église Saint-Jacques le Majeur est un édifice à nef unique qui s’achève à l’est par un chevet à trois pans. L’ensemble des élévations est épaulé par des contreforts à ressauts et construit en pierre de taille en moyen appareil.
Le pignon occidental de l’église est surmonté d’un clocher terminé par une flèche. Deux sacristies accotent de chaque côté la travée droite du chœur.
A noter, la présence d’un petit clocher-mur qui surmonte la travée droite du chœur.
Historique
Cet ancien bourg castral de plaine, est mentionné pour la première fois en 1298, dans les coutumes de Marciac données par Arnaud-Guilhem Il de Monlezun.
Un plan sommaire du XVIIIe siècle montre un bourg fortifié, cerné par des fossés en eau. Les fortifications furent érigées probablement par Bernard VII, comte d’Armagnac puis comte de Pardiac de 1418 à 1462.
Construite vraisemblablement entre les XIVe et XVe siècles, l’enceinte formait un quadrilatère percé par deux portes surmontées de tours défensives de plus de 20 mètres de haut : la tour de Rabastens, ou tour de l’horloge à l’Ouest, et à l’Est la tour de Mirande.
Dédiée à Saint Jacques le Majeur, l’église est située sur une bretelle du chemin de Saint Jacques, appelée « La Ténarèze » C’est une liaison vers la voie du Piémont qui passe par les Landes, au travers du Gers, vers les Hautes-Pyrénées.
La situation de Tillac en fond de vallée nécessitait en effet des défenses plus importantes que les Castelnaux élevés sur une colline, aussi l’église participait-elle à la défense du village.
Aucun document ne permet de dater avec précision la construction de l’église. Seule l’observation de l’appareillage et de la nature du couvrement du chœur permet de situer l’édification au XIVe siècle.
L’ensemble de l’édifice est construit en appareil moyen irrégulier caractéristique de cette époque de construction. Les nervures et les chapiteaux du chœur militent également pour une construction au XIVe siècle.
Elle est restaurée au XVe siècle, à la suite d’un incendie.
Au XIXe siècle, la nef est percée de nouvelles ouvertures en remplacement des baies à remplage de style gothique. Elle est réhaussée avec des pierres de réemploi, provenant probablement de la démolition de l’enceinte.
Le clocher-mur est remplacé par une tour, la partie supérieure des murs est reprise pour soutenir une nouvelle couverture à deux pans, l’ancienne voûte ayant été supprimée.
A l’intérieur, on relève la présence, au-dessus de l’arc triomphal, d’un oculus ainsi que des restes d’un décor peint.
La couverture du clocher, initialement couverte en ardoise, a été récemment restaurée en tuile plate.
La nef, le chevet et la chapelle ont été couvertes en tuiles mécaniques lors des travaux de 1945. Avant cette date, l’église était couverte en ardoise épaisse.












