Grand Est, Aube (10)
Torcy-le-Grand, église Saint-Pierre-ès-Liens et Saint-Leu
Édifice


L’église Saint-Pierre-et-Saint-Leu de Torcy-le-Grand, unique monument ayant survécu à la bataille du 20 mars 1814 entre l’armée française de Napoléon Ier et l’armée autrichienne commandée par Schwarzenberg, constitue un témoignage précieux de l’histoire locale. Au lendemain du combat, le village de Torcy-le-Grand était réduit en décombres, mais l’église est restée intacte.
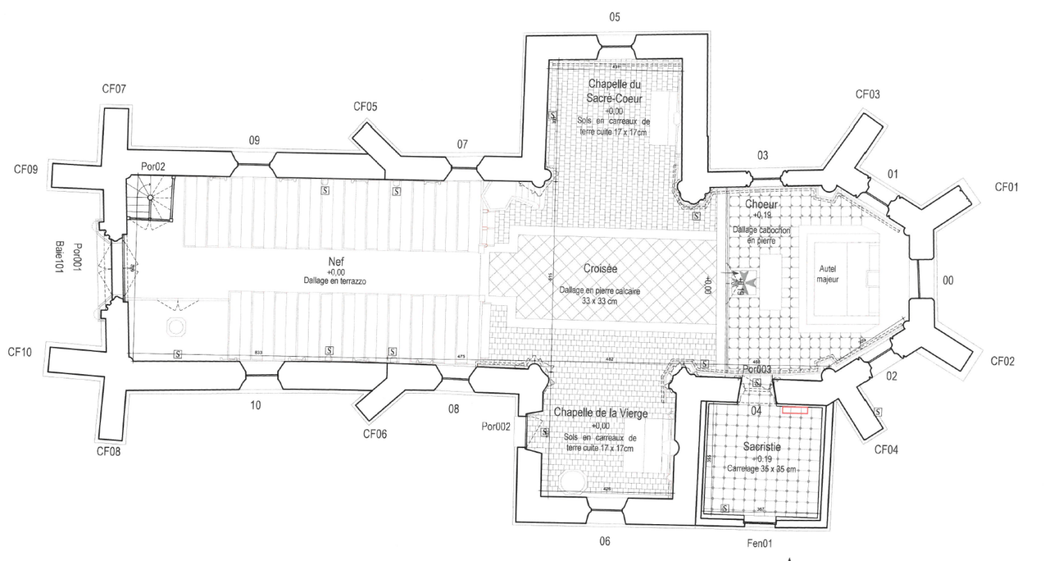
Datant principalement du XVIe siècle, l’édifice est composé d’un chœur, d’un transept et d’une première travée de la nef à l’est, qui conservent des éléments de structure et de décoration caractéristiques de cette époque, comme un ancien pignon en pan de bois visible dans les combles.
L’église a connu plusieurs phases de construction, avec une probable agrandissement au XVIIe siècle, notamment la travée ouest de la nef et les bras du transept, qui ont été achevés ou reconstruits, comme en témoignent les évidences d’arrachements dans la maçonnerie de pierre calcaire. Le portail, dont l’origine reste incertaine, pourrait avoir été déplacé ou réemployé, mais aucun renseignement précis ne permet d’en confirmer l’histoire exacte. Par ailleurs, les contreforts ont été repris au XIXe siècle, probablement pour renforcer l’édifice après des siècles d’usure.
L’église de Torcy, qui dépendait en 1789 de l’intendance de Châlons et faisait partie d’une unique communauté d’habitants jusqu’à la Révolution française, est un témoin important du passé local. Elle abrite un mobilier datant de plusieurs siècles, dont des éléments du XVIIIe, XIXe et XXe siècles, mais ces pièces ont été remaniées au fil du temps, rendant difficile une bonne lecture de leur disposition originale, en particulier les lambris du chœur. Ce mobilier, bien que précieux, est aujourd’hui en mauvais état de conservation et nécessite un relevé précis et un projet de restauration afin de préserver cette richesse historique.
Le projet en images
Actualités liées

Immobilier
Comité d’action de septembre 2024
Après une pause estivale, le comité d’action de La Sauvegarde de l’Art Français s’est tenu le 24 septembre 2024. Au terme d’un examen […]

Immobilier
Comité d’action de Novembre 2024
La Sauvegarde de l’Art Français a réunit son comité d’action le 18 novembre 2024. Au terme d’un examen approfondi, 18 édifices de nos […]

Immobilier
Comité d’action de décembre 2024
La Sauvegarde de l’Art Français a réunit son dernier comité d’action de l’année le 3 décembre 2024. Au terme d’un examen approfondi, 14 […]







