Hauts-de-France, Aisne (02)
Les Autels, Église Saint-Nicolas
Édifice


Encore entourée de son pittoresque cimetière, la petite église Saint-Nicolas forme le cœur du village des Autels, qui fut fondé en 1190 par pariage entre le seigneur de Rozoy et les moines de l’ abbaye Saint-Martin de Laon.
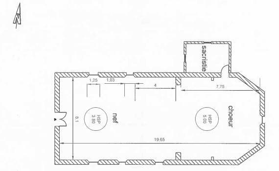
Le monument actuel résulte d’une reconstruction attribuable au XVIe siècle, à l’exception de la façade occidentale, reconstruite en 1671. L’église est construite en brique sur des soubassements de pierre, seuls les angles de la façade et de la sacristie bénéficiant de chaînages en pierre de taille calcaire. Assez basse, la nef unique est terminée par un chevet à trois pans sensiblement plus élevé, flanqué de contreforts et d’une sacristie sur la face nord. La toiture d’ ardoise qui couvre l’ensemble est couronnée par un petit clocher charpenté entièrement couvert d’ardoise.
À l’intérieur, les espaces sont couverts d’ un plafond bas récent, qu’on gagnerait à supprimer pour rendre la charpente visible. Les murs du chœur sont revêtus d’ un décor peint réalisé en 1950 par Jean Petit et Marie-Louise Meslé. Parmi la statuaire de l’église figure un remarquable Christ aux liens du XVe siècle, classé à l’inventaire mobilier des monuments historiques en 1929, dont il faudrait veiller à la protection – la statue fut volée en 1974 et retrouvée onze ans plus tard.
Les efforts fournis par cette toute petite commune pour la restauration de l’ église doivent être encouragés. Pour l’assainissement de l’édifice et la restauration de sa toiture, la Sauvegarde de l’Art français a versé la somme de 10 000 € en 2014.






