Normandie, Calvados (14)
Cairon, Église Saint-Hilaire
Édifice


NB : La notice publiée ci-dessous est une notice provisoire, la notice scientifique étant en cours de rédaction.
Description
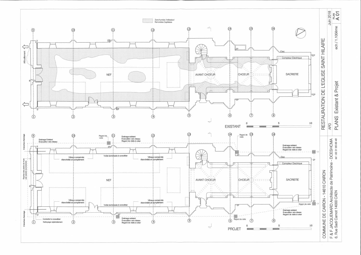
L’édifice se compose d’une nef à vaisseau unique, d’un avant-choeur construit sur deux travées – que surmonte une tour clocher -, et d’un choeur de deux travées. La composition longiligne se prolonge par une sacristie adossée au pignon oriental. La nef romane, dont certaines parties ont été refaites après 1357 puis en 1661, possède un mur orné de modillons à figures et un plafond plat en bois.
Le choeur est surmonté d’un clocher carré massif, de 8 mètres de côté, et couvert par une pyramide en pierre à quatre pans. Construit en 1776, il remplace un ancien clocher en ardoise. Voûté en pierre, le choeur appartient au premier style ogival, typique de l’architecture de la fin du XIIe et du début du XIIIe.
Histoire
D’après les sources, l’église fut très probablement construite au XIe siècle, car la dîme était perçue dès 1082 avec Saint-Étienne. Excentrée, l’église est au nord du village sur les hauteurs. La peste, qui aurait ravagé le village autour de l’église et l’implantation d’une maladrerie dans le champ voisin, aurait favorisé le départ de certains habitants dans le vallon de la Mue.
Durant la guerre de Cent Ans, l’église avec sa tour occupe une position stratégique et attise les convoitises des troupes anglaise et française. En 1356, les troupes anglaises du duc de Lancastre s’emparent de l’église et pillent les alentours. Le lieu est repris en 1357, par les troupes normandes et démantelé pour ne pas que les anglais s’en emparent à nouveau.
Le clocher, la nef et la façade occidentale actuels furent construits au XVIIIe siècle tandis que la charpente et la couverture furent reprises au XIXe siècle par l’architecte Deshayes. Enfin, la sacristie date du XXe siècle.







