Grand Est, Ardennes (08)
Bogny-sur-Meuse, Collégiale Saint-Vivent de Braux
Édifice


NB : La notice publiée ci-dessous est une notice provisoire, la notice scientifique étant en cours de rédaction.
DESCRIPTION
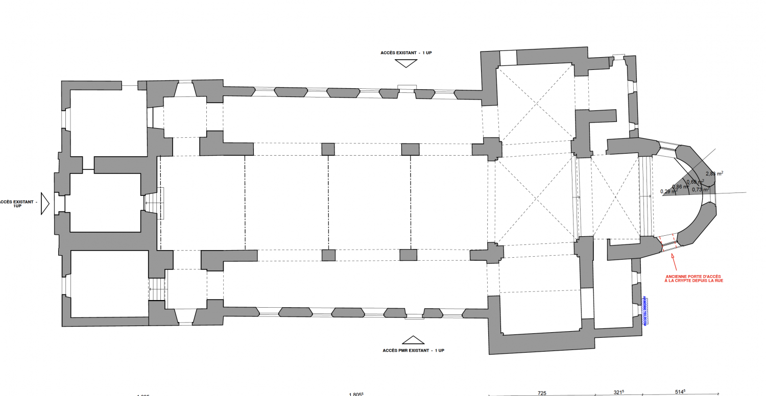
L’église Saint-Vivent est implantée au centre de la ville et est orientée au nord-est. Elle présente un plan en croix latine. La nef comporte trois vaisseaux à trois travées ; elle est précédée par un espace intermédiaire (l’ancien narthex) qui se compose de la chapelle des fonts, au nord, d’un espace de circulation, au sud, et d’une partie centrale occupée par la tribune d’orgue. Cette partie est elle-même précédée par un massif occidental du XVIIIe siècle comprenant un clocher, au centre, encadré par une chapelle et l’escalier d’accès aux niveaux supérieurs, au sud, et par une partie local technique, au nord.
Le transept est saillant et son bras nord présente une chapelle orientée qui communique avec le choeur par le biais d’un petit vestibule. Le massif occidental est élevé en moellons de quartzite et de schiste avec chaîne d’angle et encadrements en pierre de Dom-le-Mesnil. Le reste de l’édifice comporte des baies et corniches en calcaire jaune et la maçonnerie est recouverte d’un crépi moucheté. Le sol du choeur est couvert d’un damier de marbre noir veiné blanc et rouge veiné et celui du reste de l’édifice a reçu des carreaux à motifs polychromes.
La façade occidentale comporte un portail en plein-cintre à agrafe encadré par deux pilastres toscans soutenant un entablement et un fronton triangulaire ; il est surmonté par une niche à fronton incurvé et est encadré par deux niveaux de baies en anse-de-panier. La croisée et le bras nord du transept ainsi que la travée droite du choeur sont voûtés d’ogives, l’abside par un cul-de-four, la chapelle orientée et les deux espaces dans le prolongement des collatéraux sont voûtés d’arêtes, le bras sud du transept et les collatéraux sont plafonnés et le vaisseau central reçoit un plafond à la française. La couverture de l’édifice est en ardoise. La crypte est voûtée en plein cintre.
HISTOIRE
C’est la Collégiale de Braux qui est à l’origine de Bogny-sur-Meuse : commune issue de la fusion de Braux, Levrézy et Château-Regnault en 1967. Ce monument est une des plus anciennes églises de la Vallée de la Meuse ; s’il a gardé de sa fondation carolingienne son plan en croix de basilique romane, il est maintenant très composite. Du chevet pré-roman à la façade du XVIIIe siècle. On peut noter un changement d’axe de 3 degrés entre le chœur et le transept d’une part et la nef d’autre part. La partie orientale est la plus ancienne et la partie occidentale plus récente. A noter que la base du clocher sert de vestibule en avant de l’ancien porche. Ce néo-narthex, lieu privilégié de « babillages » – de discussions -, sous le regard bienveillant de St Vivent, est devenu en patois local: « la babillourde » !
L’église de Braux devint un réduit pour se défendre pendant les guerres du XVIe siècle : en 1528 elle soutint ainsi un siège de six heures puis brûla ; nouvel incendie en 1537 allumé par les protestants de Sedan, puis, en 1554, par les espagnols. A l’occasion de travaux menés en 1698, l’édifice perdit une grande partie de son aspect médiéval : destruction du jubé, rénovation complète du chœur et agrandissement de fenêtres des baies des collatéraux..
En 1775, fut construite la tour de façade en avant de l’ancienne façade qui présentait un narthex à deux tours latérales dont il ne subsiste plus que la base. Pendant l’été 1808 la grande sacristie nord s’effondra en mutilant les meubles et en écrasant un autre bâtiment ayant servi à la justice du Chapitre ; le conseil de fabrique décida ensuite de démolir le cloître et le cimetière des chanoines.
Le projet en images
Actualités liées

Immobilier
Comité de septembre 2019
Église Saint-Just-Saint-Pasteur à Camurac (Aude) Le sixième comité de l’année 2019, s’est réuni le 24 septembre dernier. A cette occasion, La Sauvegarde de […]

Immobilier
Comité de mai 2019
Église Saint-Clair à Montfroc (26) Le quatrième comité de l’année 2019, s’est réuni le 21 mai. A cette occasion, la Sauvegarde de l’Art […]






