Occitanie, Haute-Garonne (31)
Ciadoux, Église Saint-Michel
Édifice


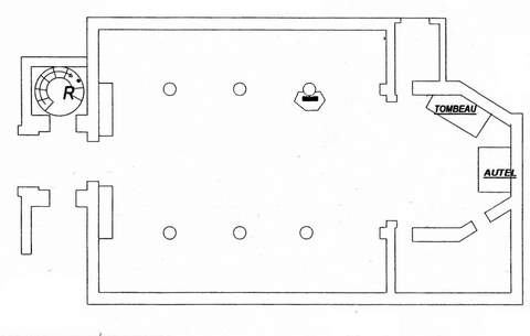
Cette grande église qui date du XVIe s. a été en grande partie reconstruite au XIXe siècle. Son plan se compose d’une nef flanquée de chapelles formant collatéraux au nord et au sud, d’une abside à pans coupés à l’est et d’un clocher hexagonal à l’ouest.
La silhouette du clocher passerait pour toulousaine s’il n’avait été coiffé, lors de sa reconstruction en 1854, d’une courte flèche de charpente. On pénètre dans l’église par une grande porte en arc brisé surmontée d’un décor troubadour. À l’intérieur, la nef communique largement avec les chapelles latérales par des arcades reposant sur des colonnes, par l’intermédiaire d’un chapiteau annulaire. Cette disposition date, elle aussi, du siècle dernier. De manière très inhabituelle, une Mise au tombeau a été placée sur le pan droit du mur de l’abside : il est vraisemblable que de nombreux éléments de ce groupe sculpté appartenaient, avant le XIXe s., à une chapelle latérale. Un oculus, ouvert dans la partie haute du chevet donne un peu de lumière à cette partie de l’église, tandis que, devant le groupe sculpté, était placé un autel néo-Renaissance en 1878. Pour achever cette présentation, le mur du chevet fut alors peint d’une Annonciation afin de compléter quelques fragments de peinture murale, plus anciens.
Bien que l’ensemble de cette église soit, sinon pour son plan, du siècle dernier, la Sauvegarde de l’Art Français a contribué par une allocation de 15 000 F aux travaux de réfection de zinguerie, et à l’assainissement du pourtour du chœur. Cette église contient en effet, outre la Mise au Tombeau du XVIe s., un tombeau d’évêque du XVe s., une statue de Marie-Madeleine et une Pietà datant de la fin du Moyen Âge.
Fr. B.






