Centre-Val de Loire, Eure-et-Loir (28)
Crécy-Couvé, Église Saint-Éloi-et-Saint-Jean-Baptiste
Édifice


NB : La notice publiée ci-dessous est une notice provisoire, la notice scientifique étant en cours de rédaction.
Description
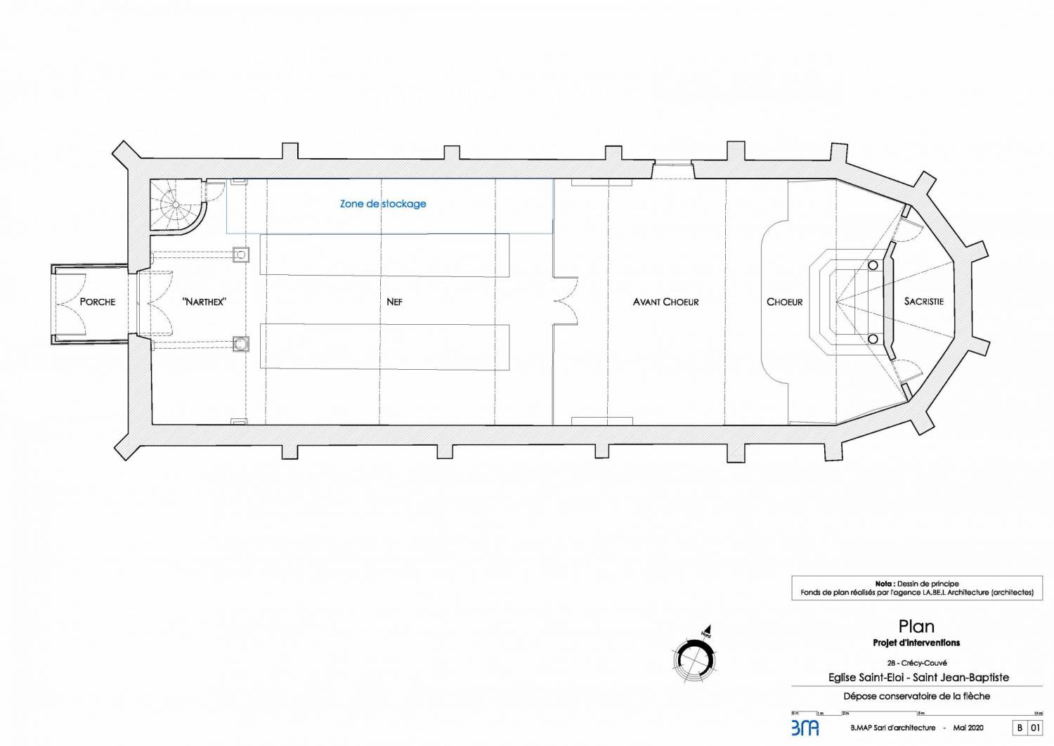
L’église présente un plan rectangulaire composé de cinq travées et terminé par une abside à cinq pans.
Des contreforts rythment chaque travée et chaque pan de l’abside.
Un clocher à base octogonale, couvert en ardoise, surmonte la première travée de la nef.
L’église est couverte en ardoises fines, posées aux crochets sur liteaux, portée par une charpente en chêne à chevrons formes fermes, fermée par une voûte à merrains du XXe siècle, succédant à une voûte à merrains probablement décorés.
Les sols sont en tomettes hexagonales.
histoire
L’église Saint-Éloi-Saint-Jean-Baptiste serait à l’origine la chapelle du château de Couvé dont la première mention connue date de 1215. Ce château relevait de l’abbaye de Saint Père de Chartres. La configuration de cette chapelle est à ce jour inconnue.
L’observation des caractéristiques architecturales de l’église actuelle permet d’en situer la construction entre le XVe et le XVIe siècle.
Des travaux d’embellissement et de mise « au goût du jour » sont entrepris dans la seconde moitié du XVIIIe s. lorsque Louis XV offre le domaine de Crécy à la Marquise de Pompadour : agrandissement des fenestrages médiévaux, construction d’un retable formant sacristie, d’une clôture de chœur et d’une tribune pouvant remplacer un ouvrage plus ancien permettant l’accès aux combles.
Durant ces travaux, il est supposé que certains supports du clocher ont été supprimés de façon à libérer la nef de leur encombrement et harmoniser les volumes intérieurs.
Après une période faste, le XIXe et le XXe siècles furent celle d’une lente dégradation des lieux malgré quelques travaux d’entretien effectués sur les couvertures et autres parties de l’église qui le nécessitaient.
C’est seulement à partir de 1901 que des travaux d’envergure sont entrepris avec la réfection de la couverture du clocher. Ceux-ci sont suivis en 1925 par des travaux de consolidation des structures du clocher et de réfection des couvertures de la partie occidentale de la nef.
Le clocher et flèche présentent un basculement important vers le sud, lié à une défaillance des appuis anciennes ainsi qu’à la dégradation des structures porteuses et rendent urgents des travaux de mise en sécurité et de restauration.
Le projet en images
Projets à proximité

Édifice
la Saucelle, église Sainte-Anne
la Saucelle
Centre-Val de Loire, Eure-et-Loir (28)

Édifice
Boutigny-Prouais, Église Saint-Pierre-et-Saint-Paul
Boutigny-Prouais
Centre-Val de Loire, Eure-et-Loir (28)

Édifice
Chauffours, Église Saint-Pierre-et-Saint-Paul
Chauffours
Centre-Val de Loire, Eure-et-Loir (28)






