Nouvelle-Aquitaine, Dordogne (24)
Vendoire, Eglise Notre-Dame de l’Assomption
Édifice


description
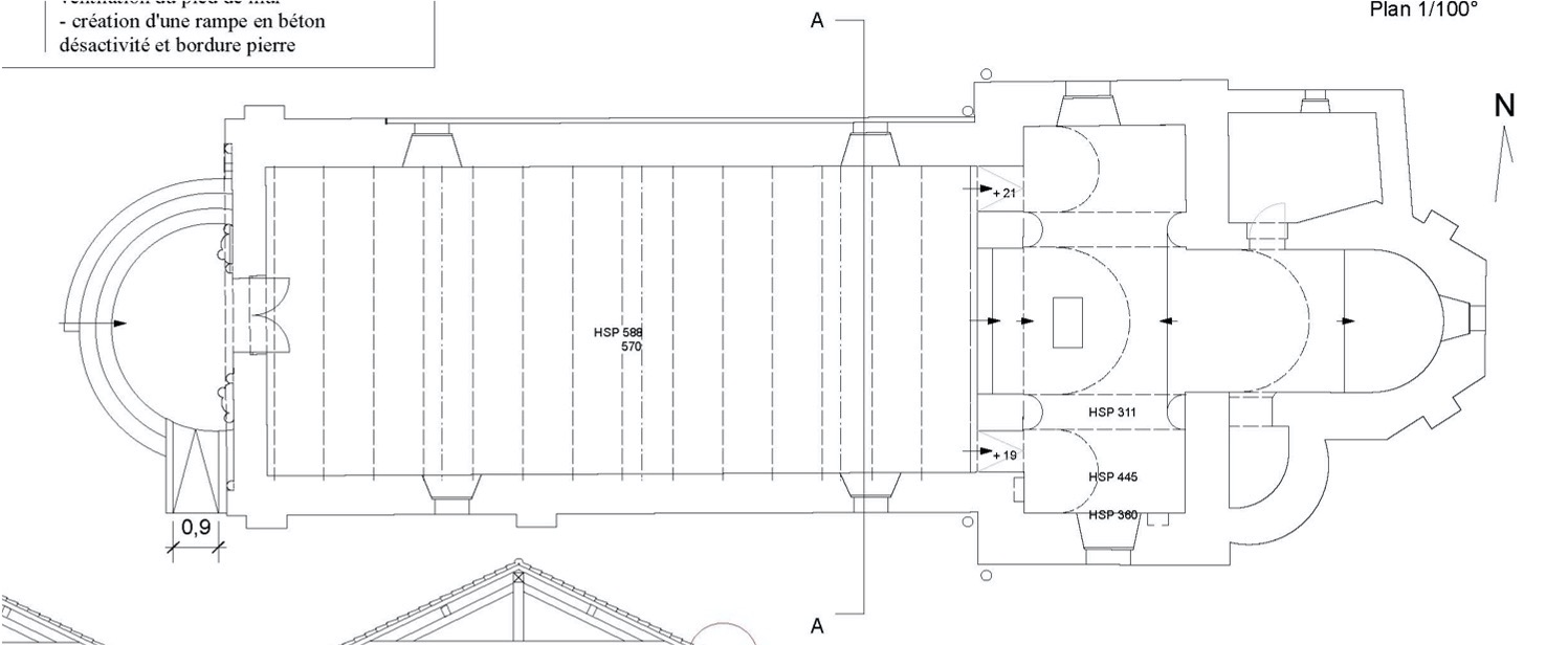
L’édifice est disposé en croix latine, avec un transept à croisillons courts, et une abside polygonale flanquée au sud d’une absidiole semi-circulaire, et au nord d’une sacristie. Le clocher surmonte l’avant-choeur.
La nef forme un rectangle de 6 x 14m, dont il ne subsiste comme élément roman à l‘extérieur, que la partie basse de la façade occidentale, d’esprit saintongeais, et que l’on peut situer du milieu du 12ème siècle. Le portail est à triple voussure, encadré de deux baies aveugles à une seule voussure. Celles-ci retombent sur des colonnettes dont les chapiteaux comportent des décors très soignés d’esprit saintongeais également. Les tailloirs des chapiteaux sont à motifs géométriques, et les archivoltes qui coiffent les arcatures sont à décor de têtes de clous. La partie haute de la façade est du 19ème siècle.
Les murs gouttereaux ont été rebâtis en moellonnage, éclairés par des baies modernes en plein cintre.
La nef communique avec la croisée du transept formant avant-choeur, par un grand arc sans aucun décor, épousant presque le plein cintre de la croisée du transept, lequel se prolonge lui-même dans le choeur avec un simple ressaut. La nef communique aussi avec chaque croisillon par une baie en plein cintre moderne, plus basse et plus large que les baies anciennes, dont on voit les clavages en hauteur, et à des altitudes différentes. Les murs qui devaient être plâtrés avec un décor de fausses pierres ont été décrépis et le moellonnage rejointé en creux il y a quelques décennies.
L’abside romane, est polygonale à l’extérieur, le polygonale curieusement pincé à la jonction avec la base du clocher, et bâtie bel appareil de grands modules, avec deux contreforts plats sur les pans biais.
La sacristie est moderne, adossée entre le croisillon nord et la face nord de l’abside.
historique
La position de l’église surprend d’un premier abord, en décalage avec le développement du village, et coincée entre un tournant et l’enclos du château. Etant l’élément le plus ancien, et sans doute d’origine prieurale, on devine que cette situation a subi les avatars de nombreuses mutations. La plus importante étant, après la disparition du prieuré, l’implantation au 17ème siècle du château, sur des bases du 16ème siècle, par les seigneurs de Bourzac après l’abandon du site historique de la seigneurie (le petit manoir de Bourzac ayant lui-même succédé à la motte féodale dont les vestiges existent encore à trois kilomètres). Le village s’est alors reconstitué en bordant un espace tracé à peu près dans l’axe du château, édifice classique bâti par l’importante famille de la Cropte. Sur le cadastre napoléonien, le château porte encore le nom de Bourzac.
D’après l’étude préalable menée en 2021 par Alain de la Ville, architecte D.P.L.G.
Le projet en images
Projets à proximité

Édifice
Lolme, Eglise Notre-Dame-de-la-Nativité
Lolme
Nouvelle-Aquitaine, Dordogne (24)

Édifice
Saint-Méard-de-Drône, peintures murales de l’église Saint-Médard
Saint-Méard-de-Drône
Nouvelle-Aquitaine, Dordogne (24)

Édifice
Villefranche-du-Périgord, Église Saint-Etienne-des-Landes
Villefranche-du-Périgord
Nouvelle-Aquitaine, Dordogne (24)










