Nouvelle-Aquitaine, Dordogne (24)
Villefranche-du-Périgord, Église Saint-Etienne-des-Landes
Édifice

NB : La notice publiée ci-dessous est une notice provisoire, la notice scientifique étant en cours de rédaction.
description
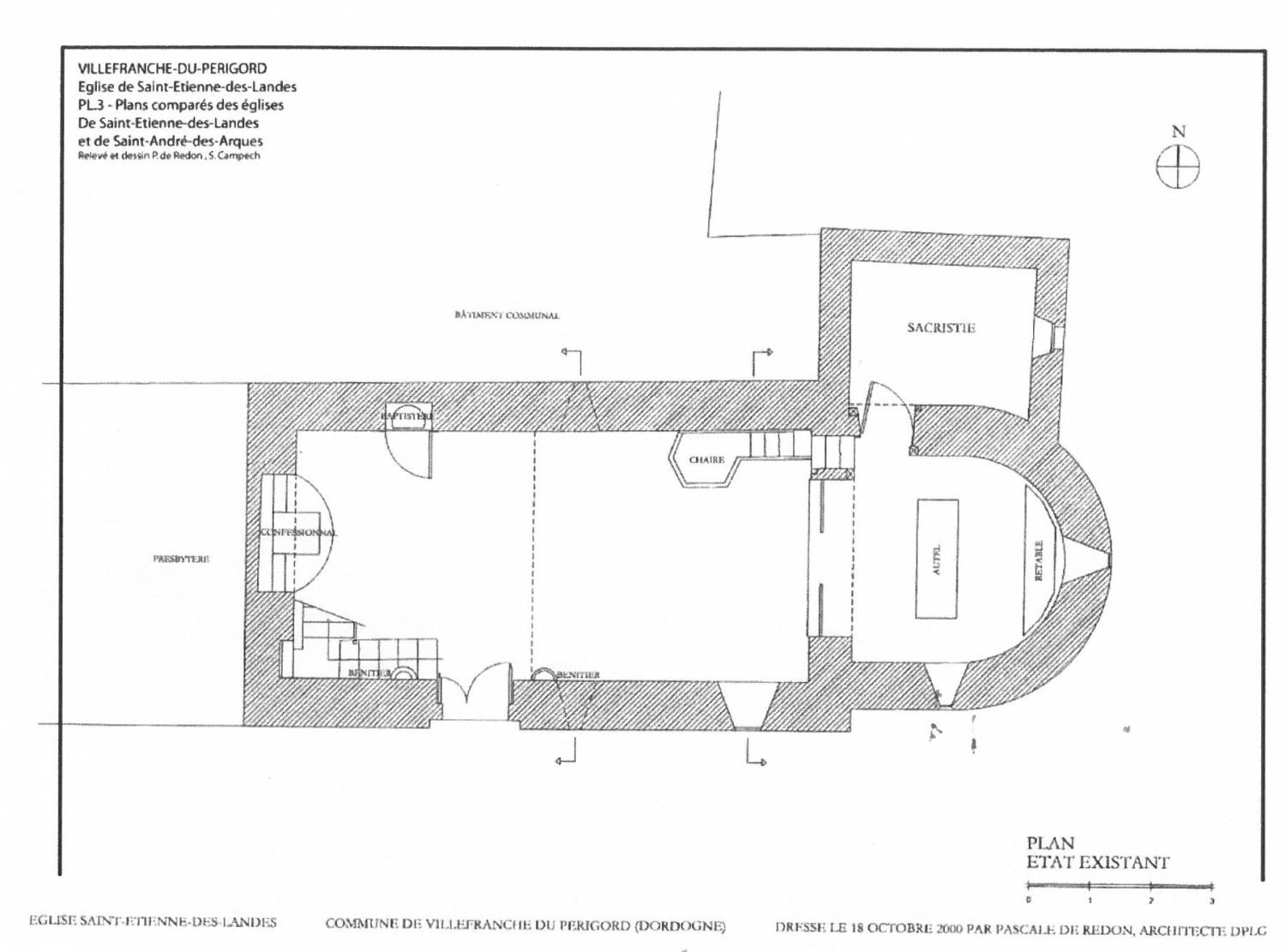
L’église Saint-Etienne-des-Landes, non orientée, se compose d’une nef rectangulaire charpentée, séparée du chœur en hémicycle par un arc triomphal en plein cintre portant le clocher-mur. Elle se prolonge à l’ouest par un bâtiment prenant l’aspect d’un logis qui servit autrefois de presbytère puis de mairie, avant d’être aujourd’hui en grande partie désaffecté.
A l’intérieur, l’arc triomphal repose sur deux cordons d’imposte biseautés retournés sur les trois faces des piliers, indice d’une datation un peu plus tardive que celle suggérée par les maçonneries.
Il conserve d’anciens joints en ruban qui pourraient appartenir à l’état primitif.
On doit aux aménagements des XVe et XVIe siècle, l’ensemble du décor peint dont les vestiges subsistent dans l’abside où l’on identifie un Christ entouré des symboles des évangélistes et une Annonciation, complétés dans la nef par un décor de faux appareil.
On retrouve dans les fenêtres hautes, des vestiges appartenant à l’époque romane.
L’église abrite un bel ensemble mobilier des XVIIe et XVIIIe siècles.
histoire
L’église Saint-Etienne-des-Landes est attribuable pour l’essentiel au XIe ou à la première moitié du XIIe siècle. Elle est probablement l’une des plus ancienne église du Périgord méridional.
Probablement isolée à l’origine, Saint-Etienne-des-Landes a servi d’église paroissiale et ses abords, de cimetière.
L’église est prolongée à l’ouest par l’ancien presbytère devenu mairie et aujourd’hui en grande partie désaffecté. Ce bâtiment communiquait avec l’église par une porte aujourd’hui condamnée, ouvrant primitivement sur l’escalier donnant accès à la tribune.
La présence d’une porte étroite, percée dans l’élévation ouest de la nef, laisse supposer qu’un bâtiment médiéval a existé dès le XIIe siècle à l’emplacement du presbytère et que des vestiges sont susceptibles d’y être conservés.
L’édifice a connu deux époques de transformations importantes.
La première entre la fin du XVe et le milieu du XVIe s. a doté l’église d’un remarquable décor peint, très étroitement apparenté à celui de l’église lotoise de Saint-André des Arques.
La seconde s’est opérée en plusieurs phases, échelonnées entre la fin du XVIIe et la fin du XVIIIe s. On peut lui attribuer la modification du dessin du portail roman, la reconstruction du clocher-mur qui a reçu alors son profil galbé ainsi que l’essentiel de son mobilier comportant notamment un retable et une chaire à prêcher.
D’après l’étude historique réalisée par Gilles Séraphin et l’étude préalable réalisée en 2015 par Pascale de Redon, architecte D.P.L.G.











