Centre-Val de Loire, Loiret (45)
Ascoux, Eglise Saint-Charles
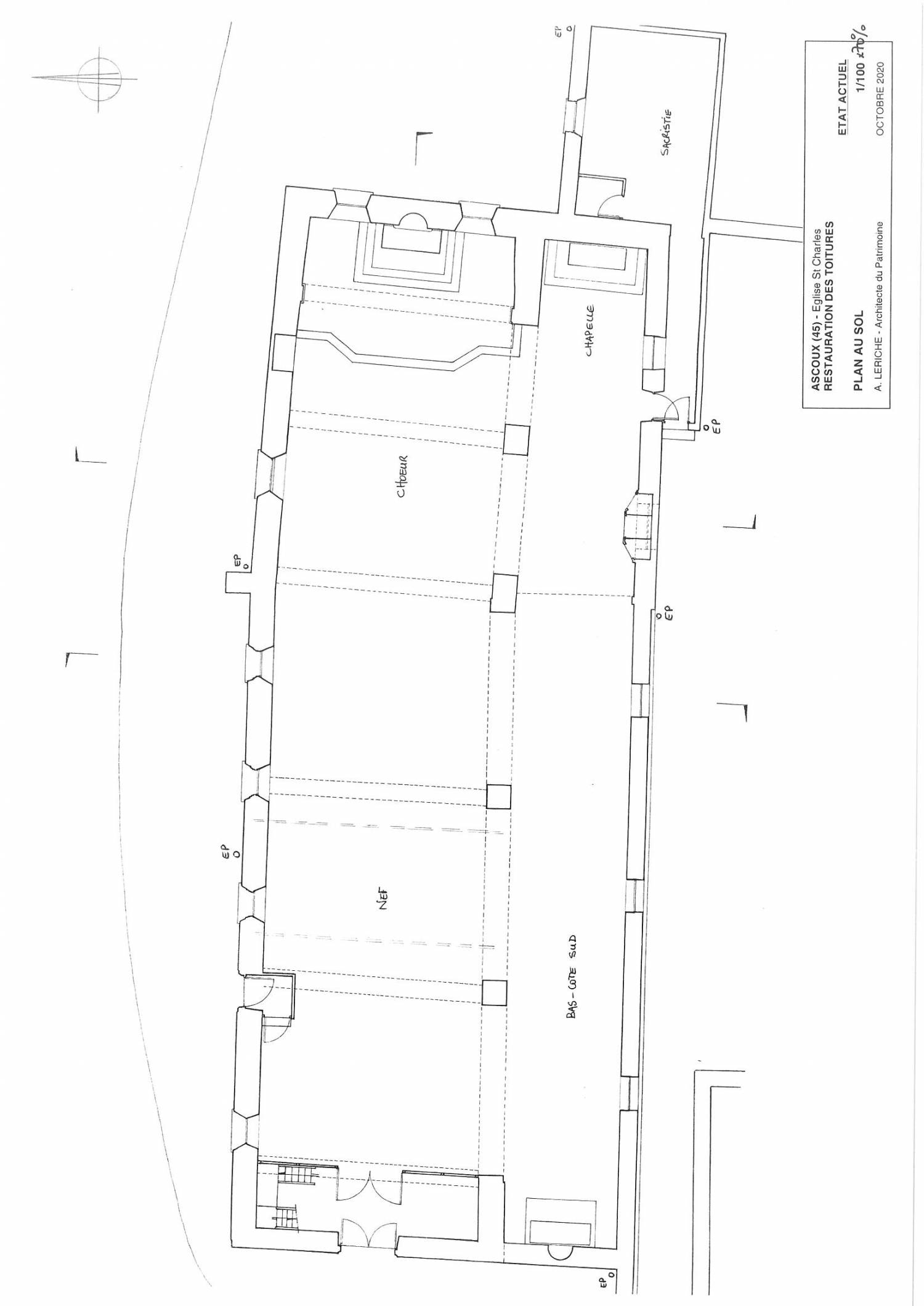
Édifice


L’église St Charles d’ Ascoux fait partie des édifices cultuels intéressants de la région de Pithiviers.
Autrefois chapelle du château, elle fut érigée en paroisse en 1638 et fut agrandie au cours des XVIIème et XVIIIème siècles pour constituer son organisation actuelle : une nef prolongée d’un chœur à chevet plat, un bas-côté Sud prolongé par une chapelle, un petit clocher sur la nef et une sacristie (déplacée vers 1930).
L’église, dédiée à Saint Charles Borromée, Saint Vrain et Sainte Émérentienne n’est pas protégée au titre des Monuments Historiques.
D’après l’étude préalable menée en 2020 par Antoine Leriche, architecte du Patrimoine.







