Bourgogne-Franche-Comté, Côte-d’Or (21)
Chaugey, église Saint-Sulpice


NB : La notice publiée ci-dessous est une notice provisoire, la notice scientifique étant en cours de rédaction.
Caché au milieu de la forêt, le village est également loin des villes qui l’entourent : 42 km de Langres ou Is-sur-Tille, 51 km de Châtillon-sur-Seine ou 55 km de Chaumont. Ce qui explique peut-être qu’il ait été oublié lors du découpage départemental en 1790, ou dans la gestion des dessertes diocésaines…
Voisin en Côte d’Or de Bure-les-Templiers (5 km) ou Beneuvre (15 km), c’est cependant du village de Villars-Santenoge (3 km) qu’il est le plus proche, et de la vallée de l’Ource, alors que la limite départementale de la Haute-Marne les sépare.
Le site du village constitue un plateau vallonné aux horizons plutôt fermés par les sommets l’entourant (425 mètres) recouverts de forêt. Cet espace est délimité au nord, à l’est et au sud-est par la vallée de l’Ource, étroite et creusée (350 mètres), ce qui explique aussi le relatif isolement de Chaugey.
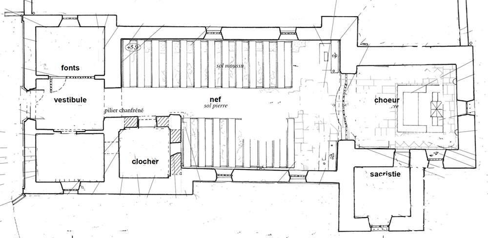
L’église bien orientée, installée sur un coteau doucement penté vers l’ouest nord-ouest est composé de volumes simples.
Un porche ouvre l’ensemble. Il précède, avec le même volume de toiture à deux pans, une nef simple, elle-même prolongée par le chœur. De ces volumes alignés, émerge le clocher de plan carré au sud-ouest de la nef.
La sacristie s’insère en épaulement au sud entre chœur et nef avec un pignon asymétrique au sud. Y a-t-il eu une ambition de construction plus importante ? Le volume saillant et disproportionné et inexpliqué du mur ouest de la sacristie prolongeant le mur de l’arc triomphal en est peut- être la trace, ou celle du remaniement d’une disposition antérieure.
- 1301 : Chaugey est donné aux Templiers par Guy de Villars, seigneur du village voisin. Aujourd’hui, croix des Templiers dans le mur du cimetière.
- 1361 : fondation d’un chapitre de chanoines à Grancey, Eudes seigneurs de Grancey donne au chanoines des propriétés et des droits dans plusieurs villages dont Chaugey.
- XVème siècle (?) : fresques sur le haut des murs intérieurs du chœur.
- 1631 : reconstruction de l’église, hormis le chœur, la sacristie et le clocher.
- 1790 : Chaugey, bien que dépendant du village voisin de Villars, en Champagne, est oublié lors de la constitution des départements puis est annexé à la Côte d’Or.
- 1800-1853 : Chaugey est annexée à la paroisse de Bure-les-Templiers.
- 3 août 1825 : description de l’église et devis des travaux par Simon Tridon, architecte à Châtillon. Cette campagne importante prévoit la démolition reconstruction du portail (vestibule, fonts, montée d’escalier), la reconstruction du mur gouttereau nord de la nef et une restauration générale de l’édifice. Elle nous renseigne sur l’état antérieur et l’état actuel de l’édifice.
- Modifiée vers 1830 : démolition du porche existant couvert en lave, ouverture de baiesdans la nef (2 au nord, 2 au sud, une dans le chœur)
- 1896 : réparation des couvertures : solin ciment et couverture lave.
- 1923 : la couverture de l’église, en laves, est refaite en tuile mécanique; la couverture du clocher, en essentes de bois, est refaite en ardoise.
Copyright: C. Chevallier
Le projet en images
Projets à proximité

Édifice
Salmaise, Ancienne Église prieurale
Salmaise
Bourgogne-Franche-Comté, Côte-d’Or (21)

Peinture
Montbard, église Saint-Urse, Baptême du Christ, d’un nouveau-né et scène de confirmation
Montbard
Bourgogne-Franche-Comté, Côte-d’Or (21)

Édifice
Quincerot, Chapelle Saint-Charles Borromée
Quincerot
Bourgogne-Franche-Comté, Côte-d’Or (21)





