Bourgogne-Franche-Comté, Doubs (25)
Éternoz, Église Saint-Pierre de Coulans-sur-Lison
Édifice


NB : Cette notice est provisoire et a été rédigée à partir des informations transmises par les porteurs de projet. Les notices scientifiques sont en cours de rédaction.
Description
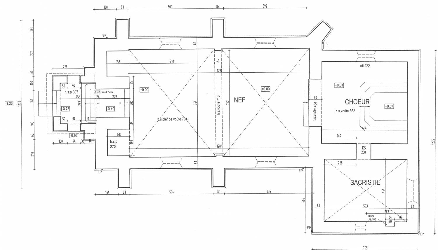
Composée d’un clocher porche et de deux travées, l’église abrite en son sein un sanctuaire en berceau du XIVe siècle, jadis éclairé d’une fenêtre gothique à quadrilobe, et d’une chapelle latérale transformée en sacristie. Le chœur est en berceau brisé, la nef est voûtée d’arêtes, le portail précédé du clocher porche, est en plein cintre.
A l’exception du chœur et d’une chapelle adjacente, dédiée à Sainte Anne qui datent du XIVème siècle, la nef à deux travées, a été reconstruite de 1776 à 1780.
Histoire
L’église fut édifiée à partir d’un sanctuaire du XIe siècle qui constitue aujourd’hui la sacristie. La première mention de l’église de Coulans dans les textes date de 1090, suite à un litige avec la paroisse d’Alaise pour la desserte du village de Saraz. Coulans formait paroisse et fut église mère de plusieurs autres villages, en particulier de Refranche qui n’eut jamais d’église. L’église est dédiée à Saint Pierre et la fête patronale est célébrée à la fin du mois de juin pour la fête des saints Pierre et Paul.
Au XIIe siècle, Guillaume de Scey, trésorier du chapitre de Saint Etienne de Besançon, donna à celui-ci la moitié des églises de Coulans et d’Eternoz. En 1299, Etienne d’Eternoz rendit à l’abbaye de Buillon la sixième partie du patronage de l’église de Coulans. L’église était selon un ancien droit, sous le patronage du prieur de MouthierHautepierre. Dans le IV des calendes de mai 1312, Etienne de Fertans, prieur de Mouthier-Hautepierre nomma messire Jean d’Avrigney, après la mort de Guy de Saône, à la cure de Coulans. Mais le prieur de Mouthier nommait alternativement à ce bénéfice avec un autre titulaire, l’église Saint Etienne de Besançon.
En 1412, Guy membre de la famille noble d’Eternoz, était curé de Coulans, et il avait voulu fonder une collégiale de chanoines dans l’église d’Eternoz. Mais, Guy, trop généreux, était chargé de dettes. Le receveur du duché, Renaud de Choissy, se mit à sa poursuite, et pour éviter une sentence de condamnation, Guy lui paya la somme de 120 Frs, prix d’une composition dont la quittance est aux archives départementales du Doubs ( cote B443).
Le libéral curé de Coulans eut beau instituer les chanoines d’Eternoz héritiers du quart de ses biens. A sa mort, il restait plus de dettes que d’avoir, et le chapitre qu’il avait institué à Eternoz dut être réuni à celui de Nozeroy. L’ancienne église comprenait une chapelle de notre Dame de pitié et de Saint Anne fondée en 1587 par jean l’Hoste de Salins, fils de Guyot l’Hoste et de Pétronille Bavillier, châtelaine d’Alaise et de Myon. Cette fondation fut approuvée par l’ordinaire du 4 juin 1588.
Décor & Mobilier
Un magnifique tabernacle en bois doré se trouve dans l’église : il fut classé le 5 décembre 1908. Ce tabernacle renferme trois statuettes dans des niches : un Ecce Homo et deux saints évêques. Enfin, un tableau illustrant l’Adoration des bergers est également exposé dans l’église, il fut classé à la même date.
Le projet en images
Projets à proximité

Édifice
Paroy, Église Saint-Etienne
Paroy
Bourgogne-Franche-Comté, Doubs (25)

Peinture
Terres-de-Chaux et Froidevaux, Église Saint-Léger des Terres-de-Chaux, Les Mystères du Rosaire
Terres-de-Chaux et Froidevaux
Bourgogne-Franche-Comté, Doubs (25)

Édifice
Montbenoît, Abbaye Notre-Dame
Montbenoît
Bourgogne-Franche-Comté, Doubs (25)







