Nouvelle-Aquitaine, Vienne (86)
Jouhet, Église Notre-Dame
Édifice


LOCALISATION
Elevée sur une terrasse dominant la Gartempe, l’église de la commune de Jouhet est moins connue que la chapelle funéraire qui lui fait face sur l’esplanade du village. Cette dernière chapelle, édifiée à la fin de la période médiévale, fut fondée par Pierre de Boschage, curé de Jouhet. Elle est classée monument historique depuis août 1908 pour ses peintures murales exceptionnelles.
histoire
Commandées par Jean de Moussy, seigneur local à la fin du XVe. L’église paroissiale de la commune est mentionnée dès 1093 et est vouée au culte de Notre-Dame. C’est le siège d’un prieuré et d’une cure à la nomination de l’abbé de Saint-Savin, voisin de Jouhet. Au XVIIe, une visite canonique est attestée. L’église est alors assez bien tenue mais le prieur réside à Paris, suppléé pour le culte par les religieux récollets de Montmorillon. Les travaux de réparation de l’église viennent rythmer la deuxième moitié du XIXe siècle :
- en 1843 : d’anciens pavés de l’église et des pierres servant de passage au ruisseau du bourg sont vendus pour subvenir aux besoins de réparations de l’église
- en 1872 : un devis est approuvé pour des réparations (couverture en ardoises du clocher, repassage de couverture en tuiles plates de la nef, crépissage de mur, réfection de la porte d’entrée)
- en 1885 : a lieu projet de construction d’une sacristie, qui se termine en 1887.
DESCRIPTION extérieure
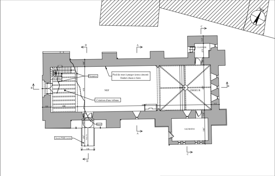
Cette église est d’époque romane pour sa nef de simple vaisseau. Elle est complétée d’un choeur voûté au XIIIe siècle avec à son chevet plat à baie en triplet. La reconstruction du clocher à l’époque classique est liée à la disparition du clocher mur occidental dont on voit les traces dans les combles. L’église, maçonnée en moellons crépis et couverte de tuiles plates, est ceinturée par des contreforts massifs, larges et épais. Leurs pierres dites de grand appareil, leur donnent une assiette solide. Le portail ouvert dans le pignon ouest est en arc brisé. Ses voussures très simples retombent sur des impostes au décor également très sobre. Il est surmonté d’une base dont l’arc à faux claveaux gravés pourraient dater du XIe. Les encorbellements de l’angle nord-ouest ne sont pas expliqués. Ils ont pu appartenir à un système défensif. L’accès se fait généralement par la porte sud, près de laquelle un bloc taillé semble avoir été le socle d’une ancienne croix monumentale. La sacristie moderne fait saillie contre le flanc sud, elle date de 1887.
DESCRIPTION INTÉRIEURE
L’espace intérieur se caractérise par l’unicité du volume orienté par le triplet à chevet plat. Ces étroites baies fortement ébrasées et à base talutées attirent le regard vers le sanctuaire. Aucune séparation, au niveau du sol, ne s’interpose entre la nef et le choeur actuels. Il faut lever les yeux pour la trouver dans le couvrement. Le choeur présente une voûte bombée à 8 nervures, de type angevin. Un arc doubleau la sépare de la nef. Cet arc et les ogives retombent sur des chapiteaux à crochets qui peuvent dater du XIIIème. Ils reposent sur un faisceau de courte colonnettes engagées interrompues par un cul-de-lampe. On y remarquera deux masques grotesques. Le voûtement de la nef, probablement prévu en deux travées, ne semble pas avoir jamais été achevé comme en témoignent les sommiers d’ogives en attente. Les sondages en recherche de peintures murales ont révélé le buchage systématique des murs au XIXème. Des traces de peintures murales ont été trouvées sur les bandeaux de la nef, aux couleurs identiques à celles des peintures murales de la chapelle de la vierge et de Sainte Catherine.
Le projet en images
Projets à proximité

Édifice
Loudun (Rossay), Chapelle Saint-Eutrope, ancienne chapelle du château du Bois-Rogue
Loudun (Rossay)
Nouvelle-Aquitaine, Vienne (86)

Édifice
Monthoiron, Chapelle Saint-Médard d’Asnières
Monthoiron
Nouvelle-Aquitaine, Vienne (86)

Édifice
Trimouille La, Chapelle du Château de La Rivière
Trimouille La
Nouvelle-Aquitaine, Vienne (86)




