Normandie, Calvados (14)
Juaye-Mondaye, Saint-Vigor de Juaye
Édifice


L’église Saint-Vigor de Juaye, au hameau de la Vieille-Église, porte le nom d’un évêque de la première moitié du VIe siècle.
Cette église, au cœur du Bessin, appartint à l’évêché de Lisieux[1] qui la céda, en 1215, au nouveau monastère des Prémontrés installés à Mondaye. Au fil du temps, Saint-Vigor-de-Juaye « voisin de Mondaye qu’il avait vu naître, avait été lentement amoindri par lui. Ceci avait tué cela »[2] et, à la fin du XIXe s., Anquetil constatait : « Aujourd’hui cet édifice est en ruines, ouvert à tous les vents, ses bas-côtés sont exposés à l’eau du ciel, ses toitures corruent, une frondaison vagabonde l’envahit, seule la nef protégée par son lambris de bois offre encore un lieu d’abri contre l’orage ; c’est le lieu de la désolation », tout juste fréquenté à l’occasion des enterrements et, ainsi, « l’église est devenue elle-même un des hôtes de son cimetière ».
Cette église n’a plus servi au culte à partir du moment où l’église abbatiale de Mondaye est devenue paroissiale en 1805. L’entretien de cette abbatiale-paroissiale fut pour la commune une charge trop lourde pour maintenir les trois autres églises du lieu, Saint-Vigor, Saint-Aubin et Sainte-Bazile.
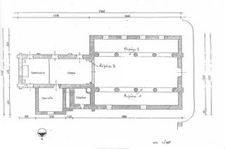
Placée au bout de champs et en bordure d’un talus dominant la route, l’église de Juaye, longue de près de trente mètres, entourée d’un cimetière ancien, se compose d’une nef, avec deux bas-côtés, qu’un mur diaphragme à arc surbaissé moderne sépare du chœur à chevet plat ; une haute tour s’appuie sur le mur nord du chœur et sur le bas-côté nord.
Le chœur, long de 13 mètres et large de 6,2 mètres, est daté du XIIe siècle ; il présente des maçonneries en arêtes de poisson et des modillons à figures grimaçantes[3] sur la façade sud, mais les fenêtres ont été refaites. Au chevet, une fenêtre ogivale à trois lancettes fut bouchée pour établir un retable et un autel de style XVIIIe siècle[4]. Selon Arcisse de Caumont, on voyait des traces de peintures murales[5].
La tour-clocher, terminée en bâtière, a été datée du XIIIe siècle. Elle donnait sur le chœur et sur le bas-côté nord par des arcs brisés qui ont été murés.
La façade occidentale, large de 13,6 mètres, soutenue par des contreforts plats, est percée d’un oculus assez large ; les murs des bas-côtés sont modernes et d’une simplicité qu’on a expliquée par la parcimonie des abbés commendataires ; le mur sud est percé par quatre fenêtres, celui du nord par deux. Le mur du bas-côté nord, déjà abîmé par les bombardements de la Libération et mal réparé, se déverse et les grilles des fenêtres tendent à ouvrir le mur dans son épaisseur. À l’intérieur, les colonnes qui portent les arcades ogivales séparant la nef des bas-côtés ont été datées des XIIIe-XIVe siècles.
L’église Saint-Vigor est longtemps restée à l’abandon et une partie du dallage a même été volée.
En 1997, sur proposition du maire de Juaye-Mondaye, s’est créée une Association pour la Sauvegarde des Vieilles Églises de Juaye-Mondaye et de leur Environnement (AVEJM), qui travaille à la protection des trois vieilles églises désaffectées de la commune : Saint-Vigor de Juaye, Saint-Aubin de Bernières et Sainte-Bazile de Couvert.
Cette association a assumé la restauration du calvaire de Saint-Vigor, de 1637, endommagé par la tempête de 1999[6]. Après des travaux de reprise au pignon, aux murs du chœur et au mur du bas-côté méridional, il fallait de nouveaux travaux de consolidation et de protection pour les arases des murs et du pignon est de la nef, pour un montant de 9 564 €, financé modestement à hauteur de 995 € par la DRAC et 995 € par la Fondation du Patrimoine, mais substantiellement, à hauteur de 4 000 €, par la Sauvegarde de l’Art français , le reste étant à la charge de l’association[7]. Tous les ans, une dizaine de bénévoles de la petite association participent à des chantiers d’entretien.
Cette église qui, comme Sainte-Bazile et Saint-Aubin, en ruines, se trouve occultée par l’imposante abbaye de Mondaye, mériterait d’être couverte.
Pour participer à la consolidation et protection les arases des murs du vaisseau central et d’une partie du pignon est de l’église, la Sauvegarde de l’Art français a accordé un don de 4 000 € en 2010.
Louis Le Roc’h Morgère[8]
[1] Regnault, Mémoire pour servir à l’histoire de Bayeux (Archives du Calvados, 6 G 8, fol. 64 v°).
[2] Notice par Eugène Anquetil, dans Normandie monumentale et pittoresque, Le Havre, 1895, p. 347.
[3] On en trouve d’autres à Thaon, par exemple.
[4] Ce qui fut souvent pratiqué dans la région.
[5] Arcisse de Caumont, Statistique monumentale du Calvados, Caen, 1857, t. 3, p. 361.
[6] Il est situé dans le cimetière, au sud de l’église.
[7] Aucun concours du Conseil général du Calvados.
[8] L’auteur remercie M. et Mme Laville, de Bucéels, pour la visite des lieux.
Le projet en images
Actualités liées

Communication
Grand Prix Pèlerin du Patrimoine 2024 : déposez votre candidature !
Depuis 2013, La Sauvegarde est partenaire du prestigieux concours, lancé en 1990 par le Pèlerin Magazine du groupe Bayard-Presse pour distinguer des projets […]

Focus sur une restauration : L’adoration des mages d’Édouard Odier

Immobilier
Comité d’action de décembre 2023
Castelnau-d’Auzan-Labarrère (Gers) – église Saint-Jean-Baptiste-de-Beziey Les rapporteurs de la Sauvegarde se sont réunis avant la pause estivale afin d’étudier de nouvelles demandes d’aide […]
Projets à proximité

Édifice
Magny-en-Bessin, Église Saint-Malo
Magny-en-Bessin
Normandie, Calvados (14)

Édifice
Manerbe, Eglise Saint-Jean-Baptiste
Manerbe
Normandie, Calvados (14)

Édifice
Cordebugle, Église Saint-Pierre-et-Saint-Paul
Cordebugle
Normandie, Calvados (14)

Édifice
Courtonne-les-deux-Eglises, Eglise Saint-Paul
Courtonne-les-deux-Eglises
Normandie, Calvados (14)










