Normandie, Calvados (14)
Manerbe, Eglise Saint-Jean-Baptiste
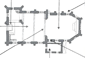
Édifice


description
L’église suit un plan à nef unique et se termine par une abside à pans coupés. Le clocher au Nord-Ouest est accolé au portail et fait l’angle.
La toiture de l’ensemble de l’église est en tuile, tandis que celle du clocher est en ardoise.
histoire
On trouvait à l’origine une église primitive romane attestée comme délabrée au début du XVIè.
L’église est reconstruite de 1513 à 1525 dans un style tardif du gothique flamboyant. Il est difficile d’évaluer la proportion de réemploi de l’église romane sur l’église actuelle mais vraisemblable que les plus petites baies du clocher et de la nef, d’un style plus « primitif » en proviennent.
Le portail de style Louis XIV provient de l’abbaye du Val Richer démolie en 1802. Au-dessus de ce portail une imposte en vitrail composée de restes d’anciens vitraux du XVIè réalisée en 1920 lors du remplacement des vitraux de la nef.
D’après l’étude préalable d’Hervé Declomesnil, architecte du patrimoine, en avril 2019.
Le projet en images
Actualités liées

Communication
5 bonnes raisons d’être mécène
Giovanni Battista Tiepolo (1696-1770), Mécène présentant les arts libéraux à l’empereur Auguste, Musée de l’Ermitage, Saint-Petersbourg Les étudiants de Sicences Po, participants à l’opération du Plus […]

Communication
97 ans après, la Sauvegarde de retour à New York
C’était en 1925. Le duc de Trévise traversait l’Atlantique, à la conquête des francophiles qui, amoureux des arts et des vieilles pierres, seraient susceptibles de rejoindre l’aventure de […]

Immobilier
Comité d’action d’octobre 2022
Saint-Aubin-sur-Gaillon (Eure) – Église Saint-Aubin Le comité s’est réuni en octobre pour étudier 9 projets dans 6 de nos belles régions. De la […]







