Nouvelle-Aquitaine, Lot-et-Garonne (47)
Laplume, Église Saint-Pierre de Cazeaux
Édifice


L’église Saint-Pierre de Cazaux, située au lieu-dit Cazaux sur la commune de Laplume dans le Lot-et-Garonne, est un édifice chargé d’histoire remontant à près d’un millénaire.
Les premières mentions de cette église apparaissent dès l’an 980, où elle est citée comme prieuré dans le cartulaire bénédictin de l’an 1000. En 1062, le comte Hunault renonce à son titre et à ses biens pour entrer comme moine à l’abbaye de Moissac. Il cède alors, par une charte datée du 17 décembre 1062, neuf églises, dont celle de Saint-Pierre de Cazaux, au prieuré de Layrac. Cette donation est confirmée par le pape Urbain II dans une bulle promulguée le 3 juin 1096 à Toulouse, qui réaffirme l’appartenance de plusieurs églises et prieurés de la région au prieuré de Layrac.
Une reconstruction a eu lieu au XIIe siècle. L’édifice, relevant alors de l’abbaye clunisienne de Moissac, devient le principal lieu de culte du bourg jusqu’à la Révolution française. L’église présente une architecture massive avec des contreforts marqués. Une grande partie de sa façade ouest date du XIIe siècle et comportait probablement un clocher-porche.
Au XIVe siècle, la nef unique est reconstruite, ainsi que le chevet. Plus tard, un clocher-mur est ajouté dans l’angle de la façade. Une chapelle vient compléter l’ensemble au XVIe siècle.
Après la Révolution, l’église perd son statut principal et devient un édifice annexe, réservé notamment aux offices des morts. Délaissée au fil du temps, elle se dégrade progressivement au XIXe siècle. En 1888, une partie de la toiture s’effondre, et à la fin du siècle, le reste est démonté pour récupérer les matériaux. Il est probable que les voûtes avaient déjà disparu bien avant cette date, possiblement dès le XVe siècle, un effondrement étant mentionné dans les archives après l’achèvement d’un chantier.
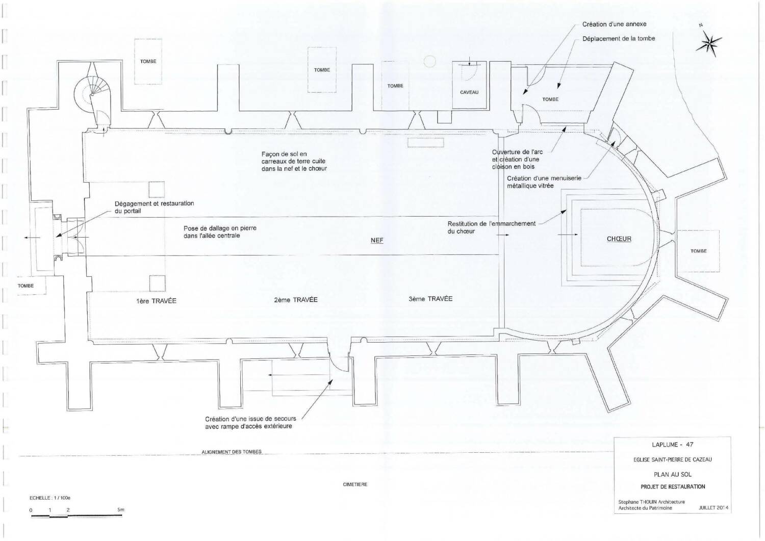
Aujourd’hui en ruine, l’église Saint-Pierre de Cazaux conserve encore quelques éléments de son architecture d’origine. Son plan comprend une nef unique de trois travées et un chœur terminé par une abside semi-circulaire. Quelques traces d’emmarchement du chœur subsistent, bien que les pierres du sol semblent avoir été déplacées ou réutilisées.
Le projet en images
Actualités liées

Immobilier
Comité d’action de février 2025
La Sauvegarde de l’Art Français a réunit son dernier comité d’action de l’année le 3 décembre 2024. Au terme d’un examen approfondi, 14 […]

Immobilier
Comité d’action de décembre 2024
La Sauvegarde de l’Art Français a réunit son dernier comité d’action de l’année le 3 décembre 2024. Au terme d’un examen approfondi, 14 […]

Immobilier
Comité d’action de Novembre 2024
La Sauvegarde de l’Art Français a réunit son comité d’action le 18 novembre 2024. Au terme d’un examen approfondi, 18 édifices de nos […]










