Occitanie, Aude (11)
Laurabuc, Église Saint-Pierre-Saint-Paul
Édifice


L’église Saint-Pierre Saint-Paul a été construite en partie haute du centre ancien de Laurabuc. Elle occupe une partie de l’ancienne forteresse dominant le village.
Dans les annales du monastère de Prouilhe, on trouve la trace du village de Laurabuc dès 1227. L’église paroissiale daterait du XIVème siècle et se trouve adossée au donjon qui sert aujourd’hui de clocher. L’église fut prise en 1575 par les Huguenots, elle fut reprise quelques mois plus tard par leurs adversaires.
Des modifications importantes ont été réalisés dans la seconde moitié du XIXème siècle qui ont consisté notamment à surélever les murs de façades de la nef de l’église. Les ouvrages et parements en pierre de taille attestent cependant d’un édifice originel beaucoup plus ancien. Le clocher, construit après 1679, abrite une cloche installée en 1697.
D’importantes réparations furent entreprises de 1864 à 1866. La nef et le chœur furent couverts d’une voûte en bois et en plâtre, et les murs furent exhaussés de deux mètres.
En 1867, une ancienne tour du château se vit parée d’un clocher octogonal. De plus, des fonds baptismaux furent ajoutés à l’édifice initial et la toiture fut rénovée, la porte d’entrée a été remplacée par une nouvelle. La tour carrée, seul vestige de l’ancien château, a été utilisée comme bas de clocher.
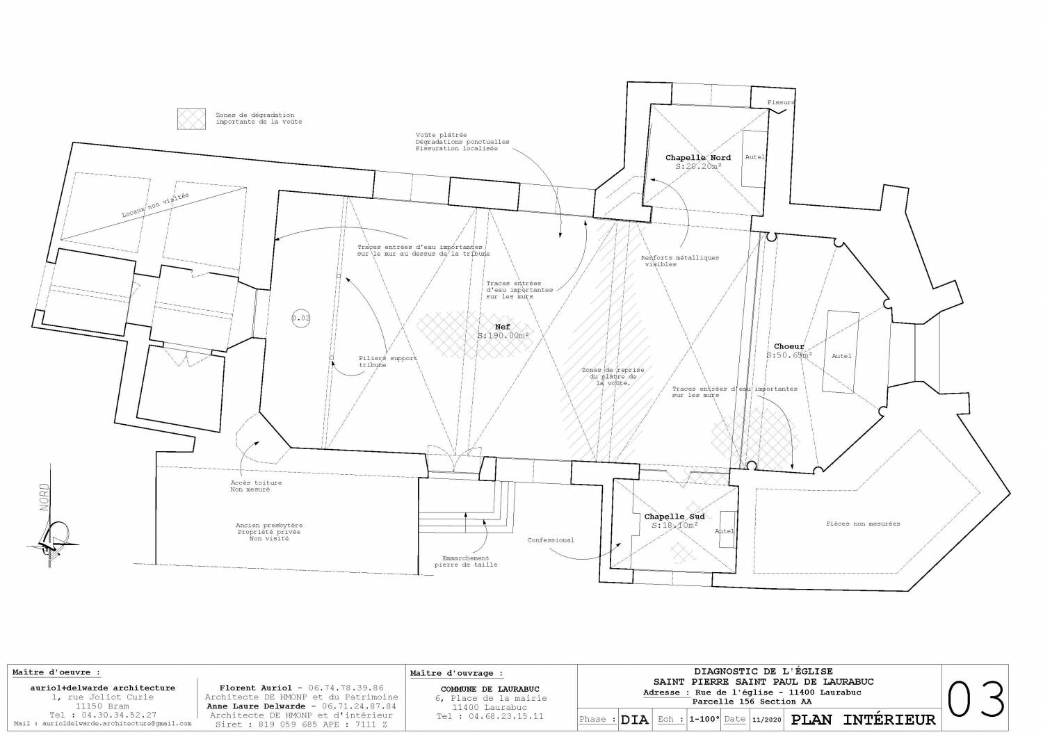
Le plan général de l’église est orienté sur un axe quasi Est/Ouest, la légère inclinaison du plan réside dans le fait que les bâtisseurs aient dû composer avec la topographie du site. Cette implantation est aussi sans doute liée à l’implantation sur un édifice plus ancien (château). L’accès initial se situe sur la façade Sud, un perron permet d’accéder à la nef de l’église. L’accès actuel se fait par l’Ouest, un porche puis un dégagement permettent d’accéder à la nef.
Le plan de l’église se compose :
– d’une nef de 3 travées,
– d’un transept saillant avec un autel de transept de part et d’autre,
– d’un choeur en abside,
– de fonts baptismaux implantés dans une chapelle indépendante au droit du porche d’entrée.
La sacristie et les anciens appartements de l’abbé sont situés au Sud du choeur et se développent sur deux niveaux au-dessous du clocher. Le couvrement intérieur est assuré par un système de voûtes nervurées en plâtre.
Le projet en images
Actualités liées

Immobilier
25 édifices aidés au comité d’automne
Lors de son comité du 3 octobre 2017, la Sauvegarde de l’Art Français a donné 164 000 € pour permettre la restauration de 25 édifices, dans toute la […]

Communication
À Carcassonne, des décors peints redécouverts
Édifiée au XIIIe siècle et rebâtie au XIVe siècle, l’église Notre-Dame du Mont Carmel, de style gothique méridional, se situe dans la ville […]

Communication
Les lycéens de Quillan à la découverte du Plus Grand Musée de France
Les lycéens de Quillan en visite Depuis son lancement en 2018, la Sauvegarde de l’Art Français a permis à onze établissements de […]








