Hauts-de-France, Aisne (02)
Lerzy, Église Sainte-Benoîte
Édifice


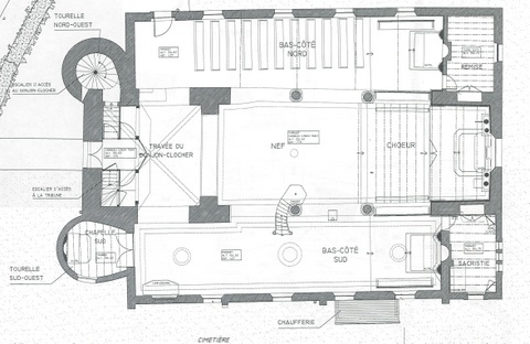
Cette église suit un plan rectangulaire avec trois vaisseaux de nef de trois travées. L’ensemble est couvert par une toiture à deux versants. A l’Ouest se dresse un imposant donjon-clocher. Le chœur, à chevet plat, occupe la dernière travée orientale de la nef.
Le donjon-clocher, de base rectangulaire, est flanqué de deux tours d’angles. La tour Sud abrite l’escalier d’accès aux salles du donjon-clocher, couvert en pavillon. La tour Nord abrite une chapelle.
De part et d’autre du chœur, le long des bas-côtés, se trouvent la sacristie au Sud et une remise au Nord.
L’ensemble est fait de briques rouges et émaillées, pierres de grès en soubassement et pierres bleues de la Tiérache. Les couvertures sont en ardoises.
Lerzy est d’abord Lehersiacum au début du XIIème siècle puis Lerzies (au XIVème siècle) puis Lerzy au XVIIIème siècle.
XIIème-XIIIème siècle: construction de l’église primitive dont il subsiste la porte Ouest, surmontée d’un arc décoré de pointes de diamants.
L’église est la propriété de l’abbaye bénédictine d’Origny-Sainte-Benoîte (martyrisée sur le mont d’Origny en 362).
XVIIème siècle : construction de l’église actuelle sur les bases de l’église plus ancienne avec typologie des églises fortifiées en raison des incessantes batailles qui se déroulent tout au long de l’histoire dans cette région.
1632 : Construction du donjon de l’église.
XVIIIème siècle : extension de l’église (ajout des bas-côtés et de la tour Sud).
1870-73 : création des vitraux de l’église par les ateliers Dalleine de Rouen. Le mobilier est également du XIXème siècle.
Le 11 mars 2014 : le feu se déclare dans la couverture du bas-côté nord et se propage rapidement sur l’ensemble de la nef. Les pompiers réussissent à sauver la plus grande partie du mobilier et le clocher.







