Île-de-France, Yvelines (78)
Maulette, Chapelle Saint-Nicolas
Édifice


NB : Cette notice est provisoire et a été rédigée à partir des informations transmises par les porteurs de projet. Les notices scientifiques sont en cours de rédaction.
description
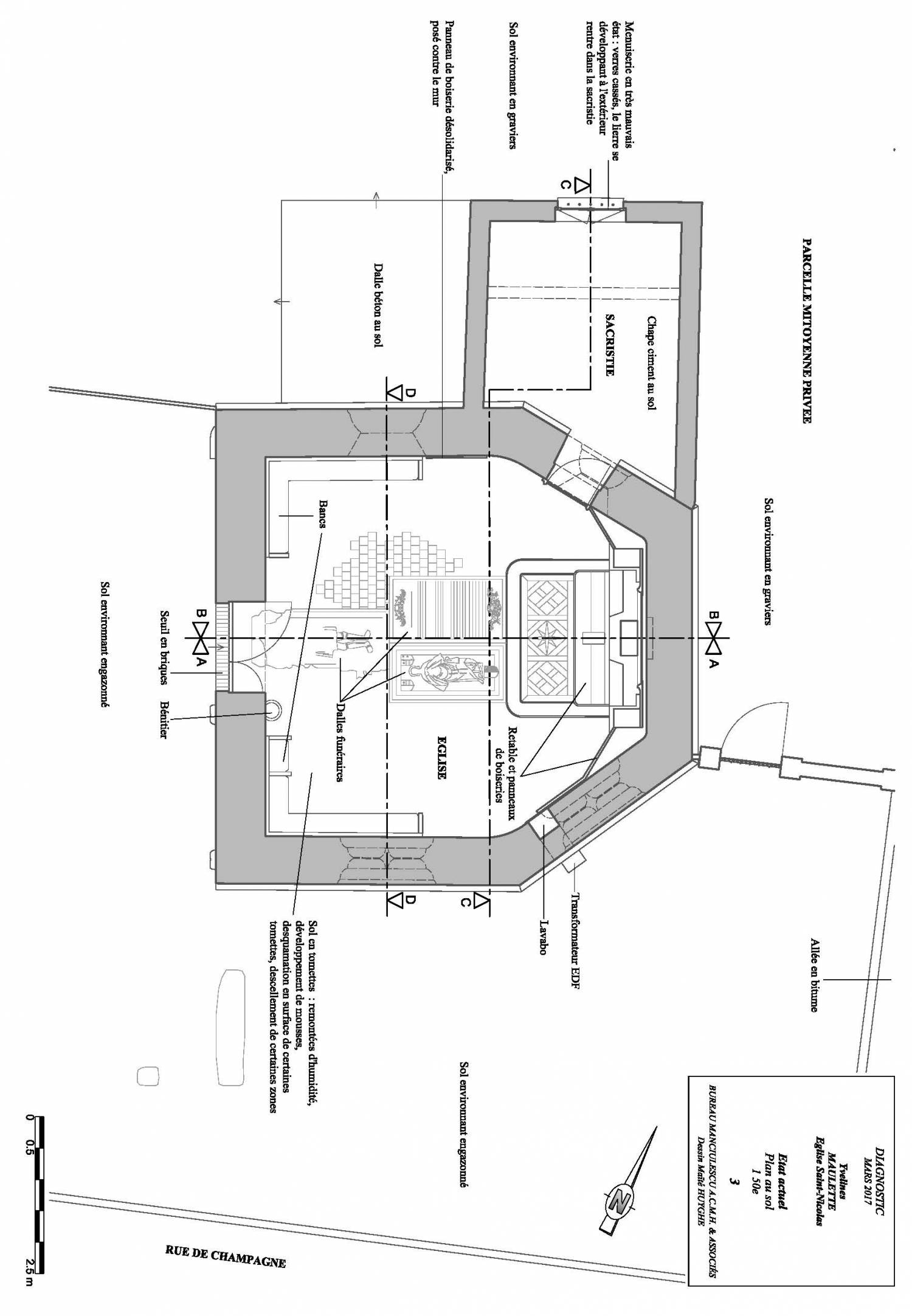
Une église primitive est construite à Thionville au XIe siècle. L’édifice actuel, probablement du XVe, est en grande partie détruit au début du XIXe siècle en raison de son état sanitaire très dégradé. Il ne reste aujourd’hui plus que le chevet à cinq pans percé de baies à deux lancettes et surmontées d’un oculus. Il est couvert d’une toiture en tuile.
Une sacristie a été adossée contre l’élévation nord, sans doute au début du XIXe siècle. On peut observer sur l’élévation nord, la trace d’une baie en plein cintre bouchée. Le pignon ouest est remanié en partie en 1821.
Histoire
L’église Saint-Nicolas est située dans le hameau de Thionville sur Opton, ancienne commune indépendante rattachée à celle de Maulette en 1964. Les baies de l’élévation sud semblent dater du XVe siècle, tandis que la charpente serait certainement du XVIe siècle.
En 1821, la démolition de l’église est envisagée car elle menace ruine, faute d’entretien. La commune argumente pour conserver un lieu de culte à Thionville, car la distance séparant la commune de la ville la plus proche (Houdan) est trop importante pour les fidèles. Suivant le projet établi par l’architecte de l’arrondissement de Mantes (Jean-Cyr-Marie Vivenel), il est en conséquence décidé de démolir uniquement la nef de l’église et de conserver le chevet et la sacristie de l’église pour le transformer en chapelle.
Plusieurs modifications sont apportées sur la chapelle conservée, soit lors des travaux de rénovation de 1821, soit durant la fin du XIXe siècle : un plancher est mis en place au niveau des entraits de la charpente existante, une baie d’accès aux combles est percée dans la façade ouest de la chapelle, une cloche est mise en place dans le comble et l’élévation ouest de la chapelle est modifiée par une porte plus réduite.
Le projet en images
Actualités liées

Communication
Un dispositif inédit pour l’entretien du patrimoine
préserver le patrimoine rural Jeudi 14 juin 2018, le Conseil départemental des Yvelines représenté par Joséphine Kollmannsberger, l’agence IngénierY, présidée par Philippe Benassaya […]

Immobilier
L’été de la Sauvegarde : 17 églises aidées en juin
Pour ce quatrième comité de l’année 2018, la Sauvegarde de l’Art Français a décidé d’aider à la restauration de 17 églises partout en […]

Immobilier
Comité de novembre : 17 églises aidées
Pour ce sixième comité de l’année 2018, la Sauvegarde de l’Art Français a décidé d’aider à la restauration de 17 églises partout en […]








