Pays de la Loire, Sarthe (72)
Prévelles, Église Saint-Hilaire
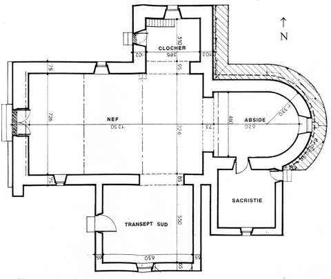
Édifice


Le village de Prévelles se situe au sud-est de Bonnétable et au nord-ouest de Tuffé, dans un paysage de collines verdoyantes. L’église Saint-Hilaire est d’une extrême simplicité tant par son volume que par son absence de décor. Le plan en croix se compose d’une nef assez courte, prolongée par une abside hémi-circulaire, une chapelle s’ouvre au sud, le clocher se situe au nord. La maçonnerie en petits moellons cubiques, notamment dans le mur sud, a fait attribuer à l’édifice une origine très ancienne, infirmée par l’échelle du chevet. La porte occidentale coiffée d’une archivolte, est surmontée d’une baie, au premier niveau, en arc brisé. La fenêtre qui éclaire la chapelle sud est ornée d’un remplage tréflé, du XVe ou XVIe siècle. Les ouvertures de l’abside semblent tardives.
Á l’intérieur, la nef est couverte d’un lambris sur entraits bagués. Dans la chapelle a été placé un autel rustique, tandis que le maître-autel à la romaine supporte, de part et d’autre du tabernacle, deux statues du XVIIIe siècle. Un grand Christ en croix, qui pourrait être daté du XVe ou du XVIe s., provient sans doute d’une poutre de gloire.
Pour permettre une reprise de maçonnerie et un drainage, la Sauvegarde de l’Art français a accordé en 2006 une aide de 10 000 euros.
Françoise Bercé

