Hauts-de-France, Somme (80)
Quesnoy-sur-Airaines, Église Saint-Michel
Édifice


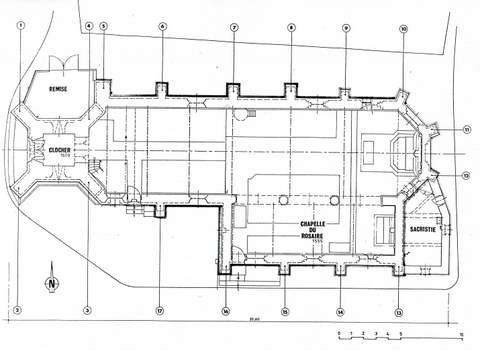
L’église Saint-Michel. L’église de Quesnoy est construite en craie au-dessus d’un soubassement de grès ou de silex, voire de brique selon les endroits. De caractère austère, pourvu de contreforts d’angle disposés obliquement, le haut clocher-porche a été achevé en 1609 comme l’indique le chronogramme sur la corniche juste au-dessus du cadran de l’horloge. Sur le même côté sud du clocher avait été peint en 1777 un cadran solaire dont ne restent que des vestiges. L’église comprend une longue nef à vaisseau unique de quatre travées, précédant l’abside polygonale à cinq pans. La construction est épaulée par des contreforts entre lesquels sont percées des baies en arc brisé. Au sud de la moitié orientale de l’église est accolée la chapelle du Rosaire, élevée en 1555. Les deux parties communiquent par de grandes arcades au tracé brisé portant sur des colonnes. Derrière cette chapelle a été élevée entre 1714 et 1738 une sacristie. La nef de l’église ainsi que la chapelle du Rosaire sont couvertes de deux charpentes lambrissées refaites il y a une vingtaine d’années.
La Sauvegarde de l’Art Français a accordé en 1996 une subvention de 85 000 F pour les maçonneries des façades sud et nord .
D. S.



