Provence-Alpes-Côte d’Azur, Alpes-de-Haute-Provence (04)
Saint-Geniez, Eglise Notre-Dame-des-Groseilles
Édifice


Description
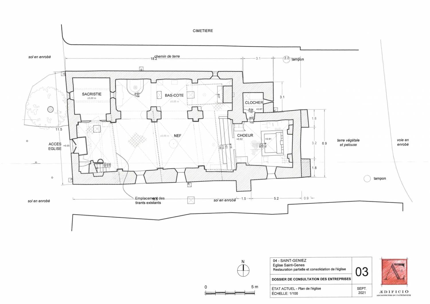
Notre-Dame-des-Groseilles est une église orientée composée d’une nef de quatre travées, terminée par un chœur à chevet plat. Le vaisseau est doublé, côté nord, par la juxtaposition d’une sacristie, d’un bas-côté de trois travée et enfin de la base de la tour-clocher.
On accède à l’église par le portail occidental. Un passage au droit de l’élévation Est du bas-côté donne accès aux charpente du bas côté et de la nef.
A l’intérieur, la travée occidentale de la nef reçoit une tribune en bois accessible par un escalier édifié contre le gouttereau sud. Au nord du chœur, une petite porte donne accès à la base de la tour-clocher.
La nef, le chœur et le bas côté nord sont chacun voûtés sur croisées d’ogives réalisées en moellons et enduites au plâtre. Il s’agirait de voûtes d’arêtes habillées de « fausses ogives ».
L’église est couverte par une toiture asymétrique à deux pentes, en tuile canal, dissimulant la répartition intérieur des espaces. Une tour-clocher émerge à l’angle nord-est, surmontée d’une toiture en pavillon, couverte de tuiles en écaille et décoré d’un motif en croix latine.
Construites en pierre et en gypse, les élévations sont couvertes d’un enduit ciment et seulement animées par les ouvertures de quelques baies, aux encadrements sobres.
Le chœur est épaulé par des contreforts correspondant à des ajouts relativement récents.
La chapelle Sud a été détruite. L’église a encore sa tribune et conserve un décor intérieur d’une grande cohérence.
historique
Le village de Saint-Geniez occuperait l’emplacement d’une villa romaine. Son nom atteste que l’église primitive, dédiée à saint Geniez, y fut élevée vers 420-430, qui est l’époque où le culte du martyr d’Arles fut le plus populaire.
L’église est citée pour la première fois au début du XIe siècle, lors de sa donation en octobre 1030 à l’abbaye de Saint-Victor de Marseille par Féraud, évêque de Gap.
Au XVIe siècle, la paroisse de Saint-Geniez est rattachée au chapitre de Notre-Dame-des-Doms à Avignon. Il apparaît d’après la visite épiscopale de Gabriel de Clermont que l’église est ruinée par les incursions protestantes lors des Guerres de Religion. La mention de « plancher » sous le couvert de l’église, laisse supposer que l’intérieur est couvert en bois et non au moyen de voûte maçonnées.
L’église se maintient tout au long du XVIe et du XVIIe s. car l’existence d’un prieuré-cure est avéré.
Un évêque en visite en juin 1602 ordonne la reconstruction de l’église.
Le maître-autel et son retable semblent réalisés dans le même temps car la toile représentant Notre-Dame des Groseilles, du peintre Guitard, est datée de 1642. Le plancher de la tribune de l’église date de cette campagne de travaux. Le clocher fait l’objet de travaux de réparation.
Le détail des travaux ne permet cependant pas de savoir si l’édifice est reconstruit ex-nihilo ou s’il s’agit d’une campagne de travaux conséquente, menée sur un édifice préexistant.
Une chapelle latérale existait probablement au sud de l’édifice, propriété de la famille de Gombert, l’une des plus vieilles famille de Saint-Geniez.
Une nouvelle campagne de travaux est lancée en 1710 correspondant à des travaux d’ornement et d’embellissement ainsi qu’une deuxième en 1739, correspondant davantage à des réparations urgentes suite à une interdiction d’accéder à l’église prononcée par l’évêque et suggérant un effondrement de la nef. Le début du XVIIIe siècle correspondrait aux prémisses des problèmes structurels que l’on observe aujourd’hui. La mise en place des premiers tirants pourrait dater de cette époque.
Ainsi, en 1811, le maire décrit l’état lamentable de l’église et des édifices communaux : toits percés, tuiles manquantes, chevrons hors d’usage… En 1927, la chapelle sud s’effondre partiellement avant d’être détruite. La même année, la partie haute du clocher est restaurée et l’arc triomphal doublé en béton.
Régulièrement des travaux d’entretien du clocher et de l’église sont entrepris jusque dans les années 1990.
Notre-Dame des Groseilles présente ainsi des problèmes structurels présents depuis le XVIIe siècle, résultant principalement d’une absence d’épaulement suffisant pour reprendre les voûtes maçonnées de la nef ainsi que l’arc triomphal, dont le dévers s’est aggravé depuis la disparition de la chapelle sud au XXe siècle, ainsi que d’une défaillance des fondations.
Des travaux urgents de stabilisation et d’assainissement de l’édifice doivent être entrepris afin que l’église Notre-Dame-des-Groseilles, fermée depuis 2006 pour cause de péril, puisse à nouveau accueillir les paroissiens.
D’après l’étude préalable réalisée par Sylvestre Berhault, architecte du patrimoine (agence Aedificio).
Le projet en images
Projets à proximité

Édifice
Sigonce, Église Saint-Claude
Sigonce
Provence-Alpes-Côte d’Azur, Alpes-de-Haute-Provence (04)

Édifice
Tartonne, Église Notre-Dame d’Entraigues
Tartonne
Provence-Alpes-Côte d’Azur, Alpes-de-Haute-Provence (04)

Édifice
Blieux, Église Saint-Symphorien
Blieux
Provence-Alpes-Côte d’Azur, Alpes-de-Haute-Provence (04)









