Bourgogne-Franche-Comté, Yonne (89)
Saint-Maurice-le-Vieil, Église Saint-Léger
Édifice


L’histoire de Saint-Maurice-le-Vieil est étroitement liée jusqu’au XIXème siècle à celle du village voisin, Saint-Maurice-Thizouaille. Ce dernier fut le siège d’une châtellenie importante qui comprenait au XIVème siècle cinq paroisses dont Saint-Maurice-le-Vieil. Ce nom semble indiquer l’ancienneté de sa fondation, ancienneté confirmée par l’étendue plus vaste de son territoire.
L’église Saint-Léger de Saint-Maurice-le-Vieil comporte des parties plus anciennes, semble-t-il, que celle de Saint-Maurice Thizouaille rasée à la fin du XIXème siècle, qui, d’après les descriptions était du XIIIème siècle.
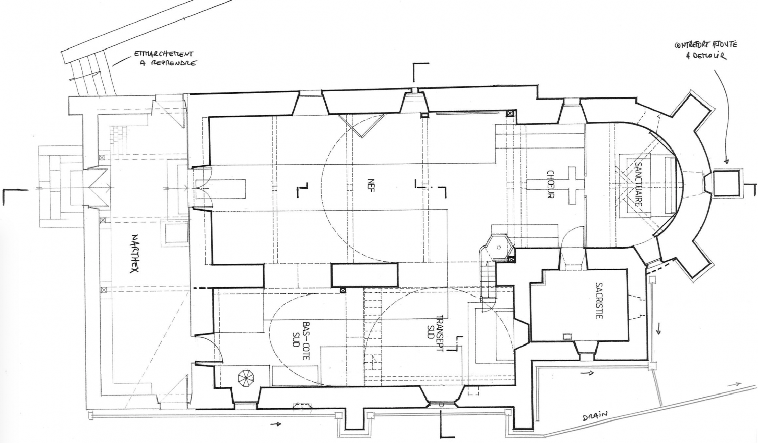
La nef remonte à l’époque romane, comme le chœur plus étroit à travée droite et chevet en hémicycle. La voûte en berceau lambrissé avec entraits et poinçons a été plâtrée en 1878. Le côté sud de la nef ouvre par deux arcs brisés sur une chapelle basse et une grande chapelle dont la fenêtre à remplage flamboyant peut donner l’illusion d’un bras de transept du XVème siècle ou XVIème siècle. Un petit clocher à flèche d’ardoise complète l’édifice. Le portail fermé par une porte sculptée d’un ostensoir a été refait au début du XVIIème siècle.
Le projet en images
Actualités liées

Immobilier
14 églises aidées lors du comité de mars
Pour ce deuxième comité de l’année 2018, la Sauvegarde de l’Art Français a décidé d’aider à la restauration de 14 églises partout en […]

Immobilier
Le printemps de la Sauvegarde : 18 églises aidées en avril
Pour ce troisième comité de l’année 2018, la Sauvegarde de l’Art Français a décidé d’aider à la restauration de 18 églises partout en France. […]

Immobilier
Le comité de janvier 2018 apporte un nouveau souffle à 23 églises
L’année 2018 commence sous les meilleurs auspices pour les 23 églises sélectionnées par le comité de la Sauvegarde, le 30 janvier. Auvergne-Rhône-Alpes Voreppe […]







