Centre-Val de Loire, Cher (18)
Saint-Pierre-les-Bois, Église Saint-Pierre
Édifice


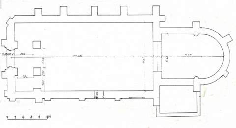
L’église paroissiale Saint-Pierre, donc la cure était autrefois à la collation de l’abbé de Déols, est une petite église romane rurale de 25 m de long édifiée sur un plan simple comprenant une abside semi-circulaire précédée d’une travée droite de chœur et d’une nef. L’abside est éclairée par trois baies en plein cintre ébrasées vers l’intérieur. Deux bandeaux continus, l’un à la base des ouvertures, l’autre soulignant la naissance de la voûte en cul-de-four de l’abside, encadrent les baies. Le chœur est séparé de l’abside par un arc à double rouleau porté de part et d’autre par une demi colonne engagée couronnée d’un chapiteau et d’un tailloir romans. Une arcature aveugle composée de quatre arcades reposant sur des pilastres orne le niveau inférieur du chœur. Une grande baie en plein cintre largement ébrasée vers l’intérieur éclairait cette partie de l’église avant la construction de la sacris ti e contre le mur nord du chœur. Celui-ci est couvert d’un berceau en plein cintre. L’étroitesse de l’arc par lequel la nef ouvre sur le chœur trahit une volonté de nette séparation des espaces. La nef, plus large que le chœur, est aussi plus élevée. Elle est éclairée par huit fenêtres en plein cintre percées en partie haute, dont deux dans le mur ouest au-dessus de l’arc d’entrée du chœur. La nef est couverte d’une voûte lambrissée en berceau brisé, pénétrée par les entraits et poinçons des fermes principales, soigneusement ouvragés. La ferme orientale, plaquée contre le mur séparant la nef du chœur, présente des dispositions archaïques qui trahissent sinon son ancienneté, du moins des problèmes de stabilité: le poinçon et l’entrait principaux sont renforcés par deux poinçons de part et d’autre, dont deux portent un entrait secondaire. L’extérieur de l’église présente la même homogénéité stylistique que l’intérieur. L’étagement des volumes contribue à l’impression de légèreté qui se dégage de l’édifice. L’abside, le chœur et la nef sont épaulés de contreforts. On constate cependant que leur implantation sur les murs sud et nord de la nef n’est pas régulière. Les murs extérieurs de l’édifice sont couronnés par une corniche chanfreinée portée par des modillons à motifs géo métriques ou végétaux stylisés. Le clocher, implanté sur la première travée de nef, a été reconstruit en 1889. Sa silhouette domine la façade occidentale, dont la rose semble être contemporaine du clocher. Le portail occidental, encadré par deux contreforts, s’inscrit sous une double voussure dont les claveaux sont ornés de bâtons entrecroisés. Le tympan est orné d’un personnage bénissant. L’angle nord-ouest de l’édifice est coupé: un pan de mur, épaulé par un contrefort, est placé à 45°. L’église possède un beau retable en bois doré du XVIIe s., classé Monument historique. La Sauvegarde de l’Art Français a accordé en 1994 une aide de 35 000 F pour la réfection de la couverture de l’ église.
J.-P.


