

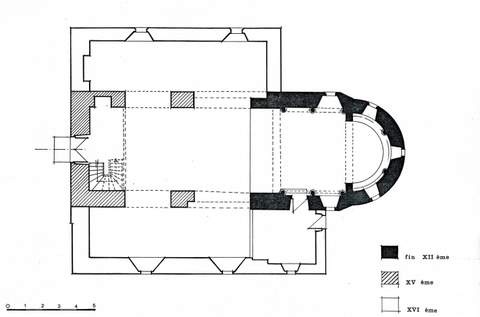
Seul exemple en Haute-Auvergne, avec sa voisine la chapelle Notre Dame du Pont à Leynhac, de construction romane en granit ru gueux du pays, l’église paroissiale de Saint-Saury possède encore un chœur et une abside du XIIe s. « Ils sont décorés d’arcatures appuyées sur les tailloirs de robustes chapiteaux couronnant des colonnettes trapues. Leur base, qui ne ressemble en rien au faire auvergnat, se com pose de trois tores égaux séparés par une gorge, celui du milieu strié d’entailles grossières formant cordelette. Deux baies remaniées en 1900 éclairent le chœur. Quant à l’abside, le jour lui vient par trois fenêtres ouvertes au-dessus de l’extrados des arcatures, à trois mètres de hauteur, au niveau de la corniche qui enserre l’ensemble ». La nef aurait été reconstruite au XVe s. et les bas-côtés ajoutés au XVIe s. La nef autrefois couverte d’un lambris a reçu, vers 1891, une voûte en brique à cintre surbaissé. Cette réfection entraîna celle de l’arc triomphal qui est également en briques. Un clocher-peigne en gros appareil de pierres rejointoyées s’élève à l’ouest. Il est percé de trois baies en plein cintre et couvert d’un toit à quatre pentes. Il a été réparé en 1745. Pour la réfection des voûtes et des maçonneries antérieures, la Sauvegarde de l’Art Français a accordé une aide de 90 000 F en 1991



