Auvergne-Rhône-Alpes, Haute-Loire (43)
Saint-Vert, Église Saint-Jean-Baptiste
Édifice


ensemble, restaurons l’église de saint-vert !
C’est au creux de la vallée richement boisée de Saint-Vert, en Haute-Loire, que s’élève, depuis plus de dix siècles, l’église Saint-Jean-Baptiste…
Bâtie à l’époque romane, l’église paroissiale de la Décollation-de-Saint-Jean-Baptiste appartenait à un prieuré dépendant de l’abbaye de la Chaise Dieu fondée en 1043 par Saint-Robert de Turlande. Le prieuré, qui abritait quelques moines, fut fondé à coté d’un château seigneurial appartenant aux seigneurs de Châteauneuf-du-Drac.
Jusqu’en 1317, la paroisse appartient au diocèse de Clermont avant d’être rattachée à celui de Saint-Flour jusqu’à la Révolution et enfin du Puy.
Au XIVe siècle, le château fut légué à l’abbaye de la Chaise Dieu qui, en pleine Guerre de Cent Ans, en fit une maison prieurale fortifiée, cerclant le château et son prieuré d’une enceinte et mettant en défense l’église afin de faire face à la menace que constituaient les routiers pendant la guerre de Cent Ans puis les troupes protestantes au cours des guerres de Religion. Un sergent appartenant au seigneur de Châteauneuf-du-Drac était chargé de garder la paroisse et ses habitants, l’église et ses biens.
A la Révolution, l’église devient propriété de Claude Champanhac, curé de Saint-Vert.
En 1869, la commune acquiert le bien pour y loger l’école des garçons, la mairie, le logement de l’instituteur, du curé et de son vicaire. En 1921, un incendie détruit une grande partie du château dont seule la partie abritant le presbytère a été conservée.
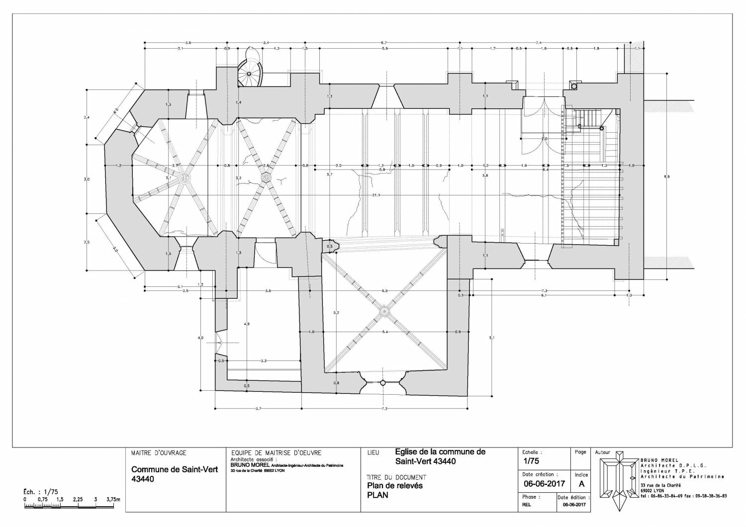
De l’église originelle, seule la nef nous est parvenue, le chœur et la chapelle nord ont été reconstruits au XIVe et au XVe siècles tandis qu’une sacristie à été accolée dans le prolongement de la chapelle à la fin du XIXe siècle.
Carte postale ancienne de la première moitié du XXe siècle
une facture romane aux allures gothiques
L’édifice se présente aujourd’hui sous la forme d’une église à nef unique de deux travées séparée du chœur par un arc triomphal brisé. Le chœur est composé d’une travée droite de chœur et d’une abside polygonale. Posé sur la travée droite du chœur, un clocher à deux étages porte la chambre des cloches dans lequel est installé un beffroi en chêne muni de trois cloches. La façade sud de la nef est flanquée de trois contreforts et ornée de modillons sculptés. Les modillons et la corniche sont des éléments qui subsistent de la période romane et nous indiquent le niveau de la toiture originelle.

Sur cette même façade, s’ouvre un portail roman, qui donne accès à l’intérieur de l’église, et se compose d’un arc plein-cintre qui retombe sur des colonnes à chapiteaux sculptés. Des traces de polychromie datant de la fin du Moyen Age sont encore visibles et délimitent des faux claveaux noirs, rouges et jaunes.

A l’intérieur de l’église, la nef romane est couverte d’une voûte en berceau dont chaque travée est renforcée par un doubleau. Le chœur et la chapelle latérale sont quant à eux voûtés d’ogives, suite à leur reconstruction à la période gothique.

Dans la nef, la base de l’autel principal se compose de la cuve de l’ancienne chaire du XVIe siècle classée au titre des Monuments Historiques en 1904. La cuve de forme hexagonale était ornée sur deux registres de bas-reliefs portant notamment les armoiries de Jacques de Sénecterre (ou Saint-Nectaire), abbé de l’abbaye de la Chaise-Dieu de 1491 à 1518, ainsi que des coquilles de Saint-Jacques.
L’ensemble de l’église est entièrement couverte d’un enduit orné d’un faux appareil qui semble ne pas remonter au-delà de l’époque moderne. Enfin, les vitraux de la nef sont l’œuvre de Charles Borie, maître verrier actif en Auvergne au début du XXe siècle.
des travaux urgents
D’importants travaux de couverture, de charpente et de maçonnerie de l’église, doivent être entrepris afin de résoudre des désordres qui mettent en péril la stabilité de l’édifice : les murs sur et ouest présentent un dévers inquiétant et malgré un bon entretien général, le temps à toutefois fait son œuvre…
Pour mener à bien ces lourds travaux, la commune de 113 habitants a besoin de soutien : chaque don compte !










