Grand Est, Aube (10)
Sainte-Maure, Église de l’Assomption de Vannes
Édifice


L’édifice était à l’origine une chapelle, devenu église paroissiale au XVIème après agrandissement. Il laisse apparaître un chevet dans son état d’origine pour les maçonnerie XII ème. Au XVI ème évolution de la construction avec l’ajout de 2 transepts et la réalisation d’une charpente à chevrons fermes. Le plan est en forme de croix latine sur un élément du XII ème, devenu aujourd’hui chevet et croisée de transept. ces transepts sont voutés. La nef, reprise au niveau des maçonneries au XII ème et XVI ème a été très modifiée au XIX ème. Sur les combles du transept s’élevait une flèche en bois de belles proportions, environ 30 mètres, abattue par un ouragan en mai 1967 alors qu’elle était en cours de restauration. Elle fût rétablie dans des dimensions plus modestes. Les voutes de la nef comme celle de la chapelle et du sanctuaire sont en bois. La tradition rapporte qu’en sortant de Troyes, Saint Thomas de Cantorbéry de rendit à vannes pour consacrer cette église.
On entre à l’église de Vannes par une petite porte cintrée du dernier siècle, encadrée d’un entablement et de deux pilastres cannelés, élevés sur des piédestaux. Au-dessus de cette porte, une grande rose, dans le style du XIIIème siècle, éclaire la nef. Elle est surmontée d’un pignon couronné d’une croix en pierre à quatre branches, isolée à sa base par un socle assez élevé.
Toute cette partie de la façade a été rétablie, en 1875, par Victor Morisel, architecte à Troyes. Une flèche en bois, d’une assez belle proportion et couverte en ardoise, s’élève sur les combles du transept.
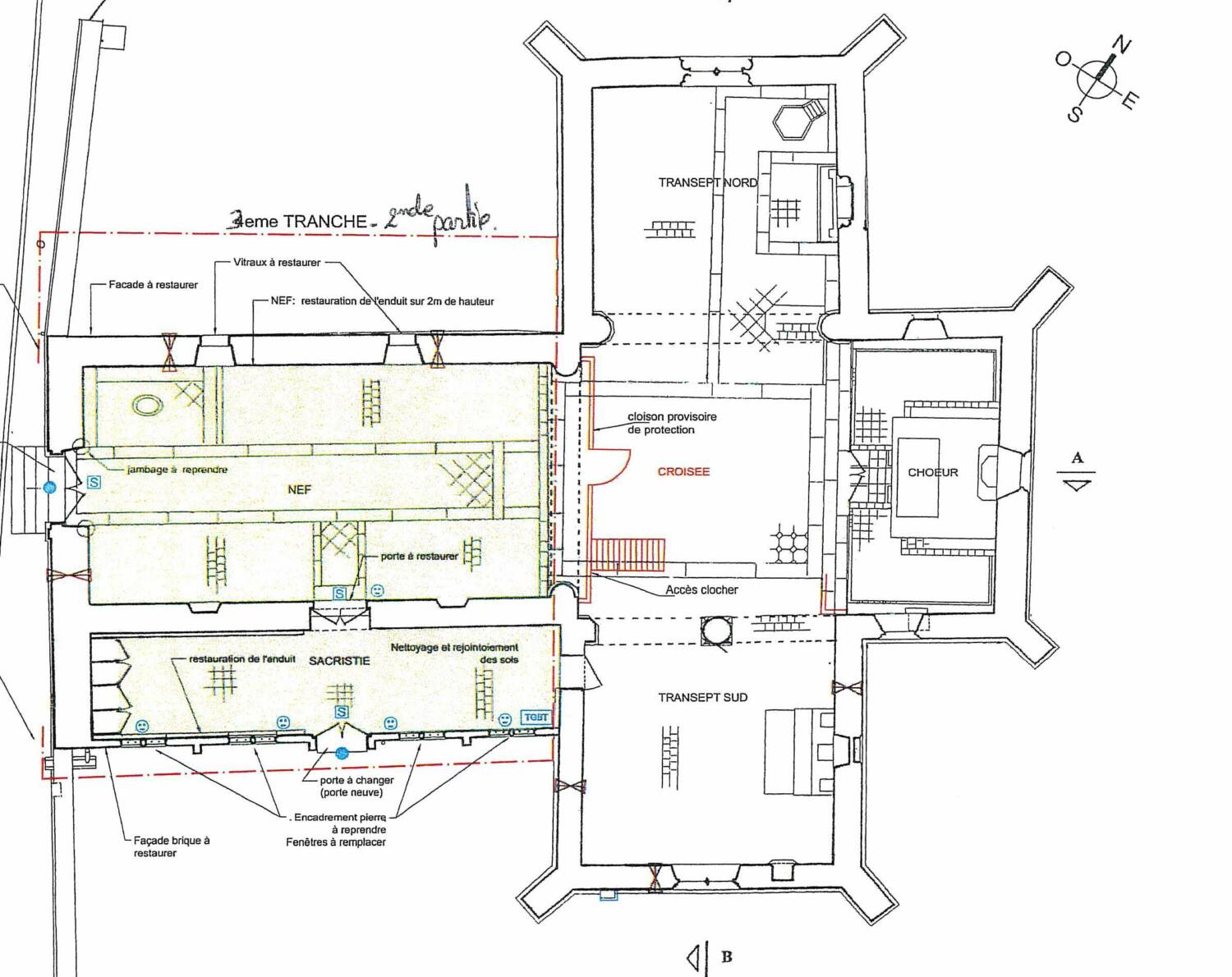
La nef est du XIIème siècle, mais elle a été refaite en partie pendant la reconstruction de la nouvelle façade. Elle prend jour, sur les côtés, par deux fenètres plein cintre très étroites. Les fenêtres de droite sont bouchées par suite de la construction d’une nouyelle sacristie, qui occupe toute la longueur du mur méridional de cette nef.
La yoûte de la nef, de style ogival, est en bois avec entraits et poinçons en fer. Une porte latérale s’ouvre à droite, au milieu de la nef et donne accès à cette nouvelle sacristie dont il vient d’être question, et au cimetière qui contourne tout le monument.
La chapelle de la Vierge, du côté méridional, s’ouvre sur le chœur par deux: ogives en tiers-point, reposant sur une forte colonne isolée, ornée d’un simple tailloir en biseau pour chapiteau; et d’une base ayant la même hauteur que le fût de la colonne, dont la masse carrée est abattue sur· 1es angles. Cette travée, d’un beau car3.ctère architectural, dà.te dé la fin du xm• siècle, comme tous les murs qui enveloppent le chœur et les deux chapelles dù transept.
Au-dessus des ogives dont nous venons de parler, et à l’intérieur de la chapelle, règne une jolie corniche, supportée par des corbeaux en quart de cercle, portant primitivement la sablière de l’ancienne charpente. Aujourd »hui elle est voûtée en bois, dans le style ogival du commencement du xvi• siècle. Les entraits de la charpente, portant les arcs qui empêchent l’écartement des arbalétriers, sont décorés, à leurs extrémités, de tètes de monstres engoulant cette pièce de bois horizontale. Un poinçon perpendiculaire repose sur cette poutre transversale. Elle est façon née et chanfreinée sur ses arètes, et le poinçon est orné d’une base renflée.
La charpente de la nef, avant sa restauration, était traitée dans les mêmes conditions que celle-ci ainsi que la voùte du chœur. Il en résultait un ensemble décoratif de l’art de la charpenterie des plus intéressants, et méritant certainement d’être conservé.
La chapelle septentrionale est la seule partie de l’église qui soit voûtée en· pierres. Elle reçoit la lumière, comme celle qui lui fait face, par une fenètre ogivale à trilobe, divisée en deux parties. Au chevet de cette chapelle se trouve une fenètre bouchée, entourée de sculptures en bois, dans un style gothique quelconque. Elle sert de niche à une .statue de saint Thomas de Cantorbéry, second patron de l’église. La tradition rapporte qu’en sortant de Troyes, ce saint se rendit à Vannes pour y consacrer l’église.
Le sanctuaire, voûté aussi en bois, est un rectangle peu profond, éclairé aux deux extrémités par deux fenêtres en lancettes. Un retable en bois occupe le mur du chevet. Il est divisé en cinq parties, et d’un style quelque peu gothique, avec ogives surmontées de contre-courbes à crochets, divisées par des contreforts et réunies par une corniche sur toute sa longueur. Chacun des panneaux est occupé par des statues anciennes et modernes, dont deux sont assez remarquables. Ces statues représentent une Notre-Dame-de-Pitié, un saint Joseph moderne, une sainte Catherine et un saint Thomas l’incrédule, mettant le doigt dans la plaie du côté de Jésus-Christ.










