Hauts-de-France, Pas-de-Calais (62)
Setques, Église Saint-Omer
Édifice


NB : La notice publiée ci-dessous est une notice provisoire, la notice scientifique étant en cours de rédaction.
On sait relativement peu de chose de l’histoire de ce modeste édifice, qui appartenait au chapitre de la cathédrale de Saint-Omer.
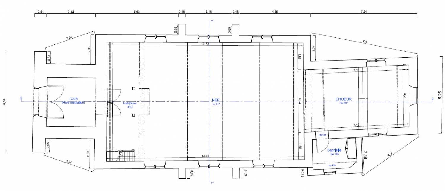
Construite en pierre semi-dure des carrières voisines d’Elnes, l’ église Saint-Omer comprend une tour-clocher de façade, une large nef de trois travées et un petit chœur. La tour de façade, surmontée d’ une flèche de pierre à crochets, est épaulée de quatre contreforts latéraux auxquels elle doit sa silhouette robuste et bien campée. Le portail, légèrement profilé en anse de panier et souligné par une archivolte, est de tradition gothique, mais pourrait ne remonter qu’au XVIIe siècle. Le chronogramme placé au-dessus indique la date de 1740 qui doit correspondre à une restauration et à la reconstruction de la flèche.
Démolie en 1863, la nef a été reconstruite sur ses fondations par un simple maçon local. Elle est couverte d’ une voûte plâtrée, sur armature de bois, au profil très tendu. Quant au chœur, il conserve des maçonneries du XVIIIe siècle, réutilisées lors des travaux du XIXe siècle.
Déstabilisés par le poids de la couverture, les murs latéraux de la nef déversent vers l’extérieur. Les travaux actuellement menés visent à en renforcer les structures.
La Sauvegarde de l’ Art français y participe en 2016 à hauteur de 15 000 €, dont 10 000 au titre du mécénat Duprez-Mulliez.








