Triaize, Église Saint-Jean-l’Évangéliste
Édifice


Située sur l’une des anciennes îles du golfe des Pictons, l’église de Triaize fut construite à partir de la fin du XIe siècle ou du début du XIIe siècle, dans un contexte de mise en valeur des marais par les moines de l’abbaye de Luçon, dont elle dépendait. Sa construction s’inscrit dans le mouvement de colonisation monastique lié aux grands défrichements médiévaux.
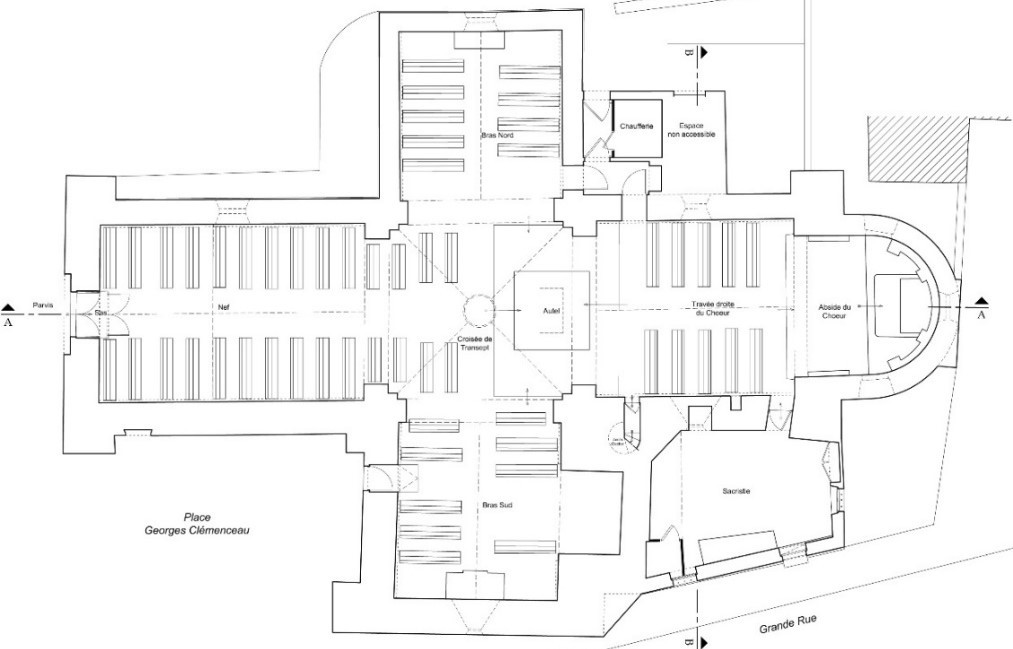
De cette première église romane subsistent aujourd’hui le croisillon sud, identifiable à sa voûte en berceau, la croisée du transept, la tracée de l’ancien chœur, ainsi que la cage d’escalier menant au clocher. L’église primitive se terminait à l’est par un chevet plat, dont plusieurs éléments sculptés témoignent d’une phase de transition entre le roman et le gothique, datable entre 1190 et 1230.
Le chevet actuel en abside semi-circulaire a été édifié vers 1770, en remplacement de l’ancien chevet, devenu trop étroit. La date est lisible sur l’arc segmentaire ouvrant la travée droite du chœur. L’élévation nord de l’édifice fut reconstruite au XVIIe siècle après les destructions subies lors des guerres de Religion, notamment en 1621-1622, lorsque les huguenots de La Rochelle renversèrent le mur nord et la tour-clocher à coups de canon.
Le clocher actuel, daté de 1771, est une réalisation remarquable de charpentiers du compagnonnage. Unique en son genre, il présente une charpente à triple renflement, œuvre rare et emblématique du savoir-faire artisanal du XVIIIe siècle.
L’église fut également remaniée aux XVIIIe et XIXe siècles, avec la reconstruction du bras nord du transept et de la voûte d’arêtes de la croisée en 1840, puis l’adjonction de la sacristie actuelle en 1878.
Sur le plan architectural, l’église présente une nef unique, un transept non saillant, un chœur composé d’une travée droite et d’une abside semi-circulaire, et une sacristie dans l’angle sud-est. Les vestiges romans montrent que l’église était probablement couverte à l’origine de voûtes en pierre. Des voûtes en brique ont ensuite été reconstruites, notamment dans le chœur, la nef, le bras nord du transept et la croisée.
La façade occidentale, avec ses arcades à moulures toriques et sa corniche à modillons, reprend des motifs fréquents du roman poitevin tardif, tout en introduisant des éléments gothiques dans le traitement sculptural : figures grimaçantes, animaux fantastiques, et chapiteaux à feuilles polylobées, évoquant la sculpture de la fin du XIIe siècle au début du XIIIe siècle dans des édifices tels que la cathédrale d’Angers ou Sainte-Radegonde à Poitiers.
Le projet en images
Actualités liées

Immobilier
Comité d’action de décembre 2023
Castelnau-d’Auzan-Labarrère (Gers) – église Saint-Jean-Baptiste-de-Beziey Les rapporteurs de la Sauvegarde se sont réunis avant la pause estivale afin d’étudier de nouvelles demandes d’aide […]

Immobilier
Comité d’action de septembre 2023
Castelnau-d’Auzan-Labarrère (Gers) – église Saint-Jean-Baptiste-de-Beziey Les rapporteurs de la Sauvegarde se sont réunis avant la pause estivale afin d’étudier de nouvelles demandes d’aide […]

Immobilier
Comité d’action d’octobre 2023
Castelnau-d’Auzan-Labarrère (Gers) – église Saint-Jean-Baptiste-de-Beziey Les rapporteurs de la Sauvegarde se sont réunis avant la pause estivale afin d’étudier de nouvelles demandes d’aide […]







