Hauts-de-France, Aisne (02)
Versigny, Église Saint-Jean-Baptiste
Édifice


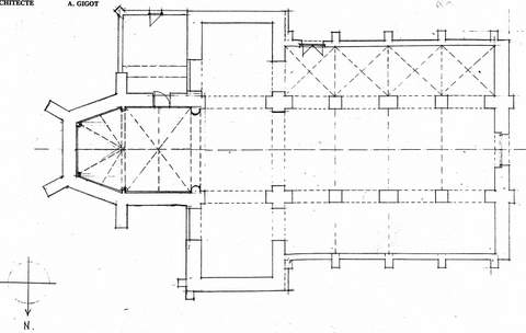
Le territoire de Versigny était habité dès l’époque celtique et l’implantation de l’agglomération remonterait au Ier s. après J.-C. Au Moyen Âge, le village appartenait en grande partie à l’abbaye Saint-Vincent de Laon puis devint propriété de l’évêque de Laon. L’église paroissiale dédiée à saint Jean Baptiste était placée sous le patronage de l’abbaye bénédictine de SaintNicolas-aux-Bois et faisait partie du diocèse de Laon. L’église, située sur une large place bien dégagée, montre à l’évidence plusieurs phases de construction. Elle se compose d’une nef flanquée de bas-côtés, d’un transept bas avec clocher central et d’un chœur polygonal. Elle a subi des restaurations importantes qui ont quelque peu altéré sa silhouette d’origine. Au XIXe s. notamment, ont été entrepris l’addition d’une sacristie, la reprise des collatéraux et le percement de la façade occidentale ; puis, après la Première Guerre mondiale, le clocher a dû être reconstruit.
L’église présente néanmoins un chœur, un transept et une nef encore authentiques et dignes d’intérêt. La nef plafonnée, longue de quatre travées, et le transept bas appartiennent à l’époque romane et présentent les caractéristiques des monuments du Laonnois de cette période. Les grandes arcades, plein cintre à angle vif, reposent sur des piles rectangulaires sans imposte, et les fenêtres hautes se situent dans l’axe des piles. L’ensemble est construit dans un appareil irrégulier, mais en assises régulières, avec des encadrements de fenêtres appareillés. Le bras nord du transept porte extérieurement des traces d’ouvertures ; les arrachements d’un toit à double rampant, que l’on retrouve aussi bien sur le bras sud que sur le bras nord du transept, pourraient être les vestiges d’anciennes absidioles ou de niches d’autel. Ce transept construit avec un bel appareil de pierre régulier paraît plus récent que la nef. Une corniche sculptée court le long des toits de la nef et du transept et témoigne du soin apporté à la construction de cet édifice.
Le chœur plus homogène a été reconstruit à la fin du XVe siècle. Vaste, élancé, il comporte une travée droite et un chevet polygonal à trois pans. Cinq grandes verrières l’éclairent abondamment ; quatre d’entre elles présentent un réseau flamboyant composé de trois lancettes à trèfle, coiffées de trois flammes ; le réseau de la fenêtre d’axe a été fortement repris au XIXe siècle. Des ogives à arc rentrant avec liernes soutiennent la voûte de ce bel ensemble. Par la qualité de sa construction, même très restaurée, l’église de Versigny conserve un réel intérêt. Elle n’abrite malheureusement plus de mobilier notable.
Pour la remise en état des charpentes et des couvertures, la Sauvegarde de l’Art français a décidé d’accorder une subvention de 200 000 F en 1998.
Le projet en images
Actualités liées

Mobilier
Les lycéens ont choisi les oeuvres à restaurer
Le 29 avril dernier avait lieu au Lycée professionnel de Laon, un jury de sélection des oeuvres à restaurer. Concrétisation d’une année d’exploration […]

Immobilier
Comité de mars 2019
L’église Notre-Dame-de-la-Visitation à Ri, dans l’Orne Le troisième comité de l’année 2019, s’est réuni le 26 mars. A cette occasion, la Sauvegarde de […]






